Soccer reality

Prodej obchodního prostoru, Praha - Vysočany, Poděbradská, 53 m2 (ID: 1665598)

Poděbradská, Praha, Vysočany

4 995 000 Kč
/za nemovitost
Hypotéka od 22 325 Kč /měs. Chci hypotéku

Parametry nemovitosti

AdresaPoděbradská, Praha, Vysočany
ID227706
StavbaCihlová
Stav objektuVelmi dobrý
VybavenoČástečně
Užitná plocha53 m2
Elektřina230V
OdpadVeřejná kanalizace
TopeníÚstřední dálkové
VodaVodovod

Origo partneři v Praze 9

Stěhovací služby

Výkup a prodej starého nábytku

Popis

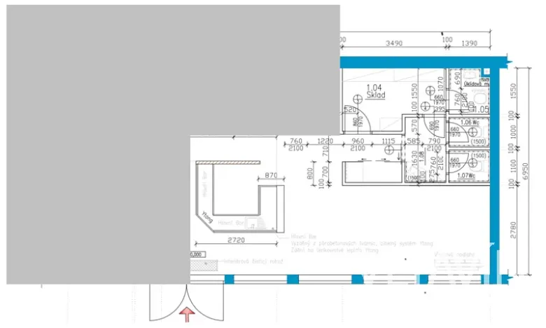
Zprostředkujeme prodej kompletně zrekonstruovaného nebytového prostoru o užitné ploše 53 m2 v žádané lokalitě Praha 9 - Vysočany, konkrétně v oblíbeném projektu Nová Harfa.
Tento moderní prostor je připraven pro provoz kavárny, ale díky svým vlastnostem a dispozicím nabízí i další možnosti využití - může sloužit například jako reprezentativní prodejna nebo kancelářské prostory.
Čím vás tento prostor zaujme?
- Perfektní dispozice:
Hlavní prostor pro provoz kavárny nebo obchodu.
Samostatný prostor pro obsluhu (bar).
Dvě prostorné toalety pro zákazníky a personál.
Praktický sklad a úklidová místnost.
- Vstup přímo z ulice: Prostor se nachází v přízemí a disponuje velkými výlohami, které zajišťují přirozené světlo a skvělou viditelnost pro kolemjdoucí.
- Dynamická lokalita s vysokou frekvencí lidí: Okolí projektu Nová Harfa je proslulé svou rozvíjející se infrastrukturou a hustou bytovou zástavbou. Vaše podnikání bude obklopeno stálou klientelou, která ocení novou kavárnu či obchod v jejich blízkosti.
- Vynikající dopravní dostupnost: Tramvajová zastávka se nachází jen pár minut chůze od nemovitosti, což zaručuje pohodlné spojení s ostatními částmi Prahy.
- Parkování: Součástí prodeje je garážové parkovací stání v suterénu domu, které je k dispozici za 650.000 Kč.
Technický stav a další výhody
Nebytový prostor prošel kompletní rekonstrukcí, což znamená, že se můžete ihned pustit do provozu bez nutnosti dalších investic. Stav objektu je moderní, čistý a připravený na vaše nové podnikání.
Pro koho je tento prostor ideální?
Tento nebytový prostor je perfektní volbou pro:
- ty, kdo chtějí otevřít stylovou kavárnu v lukrativní lokalitě
- podnikatele hledající reprezentativní prostory pro prodejnu nebo showroom
- firmy, které potřebují kancelářské prostory s výbornou dostupností.
Pozor! Prostor není možné využívat jako klasickou restaurační provozovnu.
Neváhejte a přijďte na prohlídku!
Nechte se okouzlit jedinečnou kombinací moderních prostor, skvělé polohy a vysokého potenciálu pro vaše podnikání.
Pro více informací a sjednání prohlídky nás neváhejte kontaktovat ještě dnes! Splňte si svůj podnikatelský sen na správném místě - v srdci dynamických Vysočan!

Makléř

Máte zájem o tuto nemovistost?

Tímto, v souladu s nařízením Evropského parlamentu a Rady (EU) 2016/679, v platném znění, prohlašuji, že mi je alespoň 16 let a uděluji tak svůj souhlas se zpracováním zadaných údajů (jméno, telefon, e-mail, ip adresa) společnosti B3 Technology, s.r.o., IČ: 07330600, se sídlem Novostavby 126/23, 435 11 Lom (správce dat), za účelem předání dotazu z tohoto formuláře Vámi vybranému inzerentovi a zpětného kontaktování mé osoby. Osobní údaje bude správce zpracovávat manuálně i automaticky přímo prostřednictvím svých zaměstnanců. Informace předané tímto formulářem budou uloženy v databázi správce maximálně po dobu 10 let. Odvolání souhlasu s uložením a zpracováním poskytnutých dat lze e-mailem na info@origo-reality.cz. V případě podezření na neoprávněné použití Vámi poskytnutých údajů máte právo předat podnět k šetření Úřadu pro ochranu osobních údajů. Více informací
Chystáte se prodat nemovitost?
Pomůžeme Vám!

Přihlášení k odběru

Nenechte si ujít nejnovější nabídky prodeje obchodních prostor v Praze 9.