Prodej rodinného domu, Roudné, Žitná, 98 m2

Žitná, Roudné

Rezervováno
11 975 000 Kč
/za nemovitost
Hypotéka od 53 521 Kč /měs. Chci hypotéku

Parametry domu

StavRezervováno
AdresaŽitná, Roudné
IDCB250424
StavbaCihlová
Stav objektuNovostavba
Typ objektuPatrový
Druh objektuSamostatný
Lokalita objektuKlidná část obce
Užitná plocha98 m2
Zastavěná plocha125 m2
Podlahová plocha98 m2
Plocha pozemku615 m2
Plocha zahrady475 m2
Třída energetické náročnostiB - Velmi úsporná
Elektřina230V, 400V
PlynIndividuální
OdpadVeřejná kanalizace
TopeníLokální plynové
KomunikaceAsfaltová
TelekomunikaceInternet
DopravaVlak, Dálnice, Silnice, MHD, Autobus
VodaVodovod
Topné tělesoPodlahové vytápění
Zdroj topeníPlynový kondenzační kotel
Zdroj teplé vodyPlynový kondenzační kotel
Terasa
Výtah
Bezbarierový přístup
Parkování

Origo partneři v Roudném

Výkup a prodej starého nábytku

Popis

Rezidence "Zlaté Roudné" - další domy ve výstavbě. Dům č. 54 k nastěhování 6/2026.
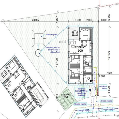
Nabízíme prodej novostavby rodinného domu "na klíč" o dispozici 5+kk (možnost úpravy na 4KK s garáží). Jedná se o samostatný dům typu bungalov - č.54 s pozemkem 615m2 (parc.č.480/36). Dům se nachází v ulici Žitná v Roudném na okraji Č. Budějovic. Obytná plocha domu je 97,7m2 + terasa 13,58m2. Zastavěná plocha domu 125m2 + parkovací stání pro 2 auta a terasa. Možnost klientských úprav včetně garáže.
Dispozice: zádveří (2,7m2), šatna/sklad (4,8m2), koupelna se sprch. koutem, umyvadlem, WC (6,7m2), WC (1,4m2), pokoj (12,7m2), 2x pokoj (10,4m2), obývací pokoj s kuchyňským koutem (30,5m2) + spíž/pracovna (7,6m2), chodba se schodištěm (6,6 m2). Z obýváku je vstup na terasu o výměře 13,58m2. Plocha parkovacího stání pro 2 auta 36m2.
Stavba je zahájena, kolaudace a předání 6/2026.
Domy jsou situovány v nejklidnější části výstavby Rezidence Zlaté Roudné. Zahrady domů jsou orientovány na západ/východ, sousedící domy jsou nízké bungalovy.
Zákazník nyní může sám volit konečnou podobu svého domu výběrem dle vlastního přání (podlahových krytin, vnitřních dveří, obkladů, dlažeb a sanity koupelny), standardy předložíme zájemci.
Zpevněná plocha - terasa ze zámkové dlažby Best Beleza, vchod a parking ze zámkové dlažby Best Klasik, plot - podhrabový obrubník+pletivo (180-200cm), systémová branka cca 1m + 3m brána dvoukřídlá, okapový chodník včetně oblázků, příprava na venkovní žaluzie (kastlíky). Vybavenost: konstrukce Porotherm 240–300 obvod, vnitřní 200, příčky 150, zateplovací systém 180 mm polystyren, plastová okna a dveře – izolační trojsklo, veškeré vnitřní rozvody – elektřina, plyn, voda, topení, plynový kotel BAXI se zásobníkem vody, v celém domě podlahové vytápění, podlahy vinyl a dlažba, dveře s obložkami, koupelny se sprch. koutem, vanou, umyvadlem a WC, příprava na fotovoltaiku.
Na přání zákazníka je možné obložit části fasády dřevem.
“REZIDENCE ZLATÉ ROUDNÉ“ se nachází v obci Roudné asi 3 km jižně od Českých Budějovic. Roudné bylo založeno při levém břehu Malše, navazuje na městskou část Rožnov. Vybavenost obce Roudné: mateřská škola, hřiště, restaurace, knihovna, kulturní sál, požární zbrojnice, sběrný dvůr, v obci fungují spolky a sportovní kluby.
Navazujeme na již několikátý úspěšně realizovaný a velmi žádaný projekt investora, který je jednička ve svém oboru.
Velký zřetel je kladen na energetickou úspornost domu, aby budoucí majitel měl co nejnižší náklady na provoz domu (PENB – B).
Pozemky jsou přístupné po obecní komunikaci, výstavba domů probíhá na zasíťovaném ZTV – plyn, elektřina, vodovod, kanalizace, Starnet – optický kabel.
Hypoteční servis zdarma (naši hypoteční poradci řeší úvěry u všech bankovních domů za nejlepších podmínek na trhu).

Makléř

Máte zájem o tento dům?

Tímto, v souladu s nařízením Evropského parlamentu a Rady (EU) 2016/679, v platném znění, prohlašuji, že mi je alespoň 16 let a uděluji tak svůj souhlas se zpracováním zadaných údajů (jméno, telefon, e-mail, ip adresa) společnosti B3 Technology, s.r.o., IČ: 07330600, se sídlem Novostavby 126/23, 435 11 Lom (správce dat), za účelem předání dotazu z tohoto formuláře Vámi vybranému inzerentovi a zpětného kontaktování mé osoby. Osobní údaje bude správce zpracovávat manuálně i automaticky přímo prostřednictvím svých zaměstnanců. Informace předané tímto formulářem budou uloženy v databázi správce maximálně po dobu 10 let. Odvolání souhlasu s uložením a zpracováním poskytnutých dat lze e-mailem na info@origo-reality.cz. V případě podezření na neoprávněné použití Vámi poskytnutých údajů máte právo předat podnět k šetření Úřadu pro ochranu osobních údajů. Více informací
Chystáte se prodat nemovitost?
Pomůžeme Vám!

Přihlášení k odběru

Nenechte si ujít nejnovější nabídky prodeje rodinných domů v Roudném.