Prodej bytu 4+kk, Torrevieja, Španělsko, 116 m2
Torrevieja
/za nemovitost
Parametry bytu
| Adresa | Torrevieja | 
|---|---|
| ID | SPT650Dg-36 | 
| Stavba | Smíšená | 
| Stav objektu | Ve výstavbě | 
| Patro | 6. z 6 | 
| Vybaveno | Ne | 
| Vlastnictví | Osobní | 
| Užitná plocha | 116 m2 | 
| Podlahová plocha | 116 m2 | 
| Třída energetické náročnosti | G - Mimořádně nehospodárná | 
| Elektřina | 230V | 
| Telekomunikace | Internet | 
| Sklep | |
| Terasa | |
| Výtah | |
| Parkování | 
Popis
Dovolujeme si Vám nabídnout na prodej nový apartmán v pěkném komplexu blízko moře poblíž města Torrevieja v provincii Alicante (Costa Blanca jih) ve Valencijském regionu ve Španělsku. V komplexu bude celkem 36 apartmánů se 2, nebo 3 ložnicemi a 2 koupelnami. 
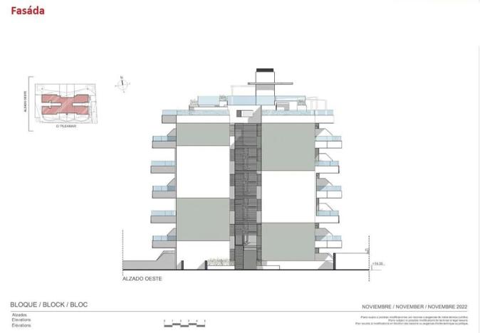
Nabízený apartmán Dg36 o ploše 116,10 m2 se nachází v 5. patře budovy a sestává z chodby, 3 ložnic, 2 koupelen, komory a obývacího pokoje s kuchyní a jídelnou, odkud je vstup na terasu o rozloze 20 m2. K apartmánu náleží garážové parkovací místo a sklepní kóje č. 36. Apartmán je orientovaný na severovýchod a bude mít výhled do parku a na moře. Lze ho za příplatek vybavit nábytkem z katalogu Aktual či LGance. 
Budova bude mít dvě podzemní podlaží, přízemí a 5 pater a z nejnižšího podlaží do nejvyššího se dostanete pomocí 2 výtahových kabinek či po schodišti. Podzemní podlaží budou sestávat z parkovacích míst a sklepních kójí. Na ostatních podlažích budou apartmány, přičemž apartmány v přízemí budou mít předzahrádky. Apartmány budou mít klimatizaci a WiFi. 
Budova bude disponovat střešní terasou, která bude využívána jako společný prostor pro všechny rezidenty. Bude zde infinity bazén o velikosti cca 74 m2 se 3 vodními lehátky a výhledem na moře a vedle bazénu bude vířivka. Dále zde budou venkovní sprchy, pergola a relaxační zóna s pohovkami, lehátky a květináči. Na jižní straně střešní terasy bude prostor s grilem, pracovní deskou a dřezem a s místem k posezení. 
Komplex se nachází v atraktivní lokalitě, kde jsou poblíž restaurace, obchody či supermarkety. Pro milovníky sportu je nedaleko několik golfových hřišť. Nejbližší pláž Cala Piteras je vzdálená pouhých cca 300 m. Dokončení výstavby je plánováno na červen 2024.
Přihlášení k odběru
Nenechte si ujít nejnovější nabídky prodeje bytů 4+kk.
 
                                                                                     
                                                                                     
                                                                                     
                                                                                     
                                                                                     
                                                                                     
                                                                                     
                                                                                     
                                                                                     
                                                                                     
                                                                                     
                                                                                     
                                                                                     
                                                                                     
                                                                                     
                                                                                     
                                                                                     
                                                                                     
                                                                                     
                                                                                     
                                                                                     
                                                                                     
                                                                                     
                                                                                     
                                                                                     
                                                                                     
                                                                                     
                                                                                     
                                                                                     
                                                                                     
                                                                                     
                                                                                     
                                                                                     
                                                                                     
                                                                                     
                                                                                     
                                                                                     
                                                                                     
                                                                                     
                                                                                     
                                                                                     
                                                                                     
                                                                                     
                                                                                     
                         
         
         
         
         
         
         
         
        