Prodej rodinného domu, Ústí nad Orlicí, Východní, 120 m2

Východní, Ústí nad Orlicí

8 785 000 Kč
/za nemovitost
Hypotéka od 39 264 Kč /měs. Chci hypotéku

Parametry domu

AdresaVýchodní, Ústí nad Orlicí
ID1
StavbaCihlová
Stav objektuVe výstavbě
Druh objektuRohový
Lokalita objektuKlidná část obce
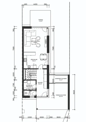
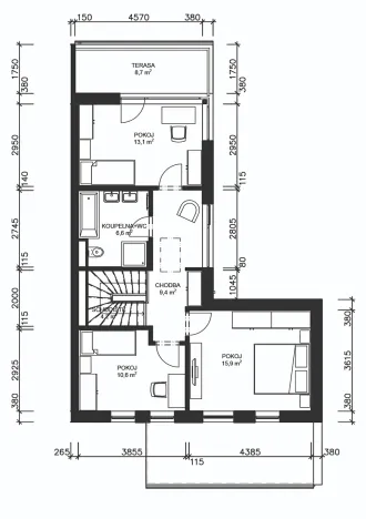
Užitná plocha120 m2
Plocha pozemku351 m2
Třída energetické náročnostiA - Mimořádně úsporná
Topné tělesoPodlahové vytápění
Zdroj topeníPlynový kondenzační kotel
Parkování

Origo partneři v Ústí nad Orlicí

Pojištění a finance

Popis

Nabízíme k prodeji rodinný dům v lokalitě Na Štěpnici, ul. Východní. Rodinný dům se dokončuje na přání klienta. Ve standardním provedení jsou zahrnuty kastlíky pro předokenní žaluzie, podlahové krytiny, obklady se sanitou včetně baterií, dveře s obložkovými zárubněmi, schodiště. Dům je vytápěn plynovým kotlem přes podlahové topení a ohřev vody zajišťují solární panely.

Makléř

Máte zájem o tento dům?

Tímto, v souladu s nařízením Evropského parlamentu a Rady (EU) 2016/679, v platném znění, prohlašuji, že mi je alespoň 16 let a uděluji tak svůj souhlas se zpracováním zadaných údajů (jméno, telefon, e-mail, ip adresa) společnosti B3 Technology, s.r.o., IČ: 07330600, se sídlem Novostavby 126/23, 435 11 Lom (správce dat), za účelem předání dotazu z tohoto formuláře Vámi vybranému inzerentovi a zpětného kontaktování mé osoby. Osobní údaje bude správce zpracovávat manuálně i automaticky přímo prostřednictvím svých zaměstnanců. Informace předané tímto formulářem budou uloženy v databázi správce maximálně po dobu 10 let. Odvolání souhlasu s uložením a zpracováním poskytnutých dat lze e-mailem na info@origo-reality.cz. V případě podezření na neoprávněné použití Vámi poskytnutých údajů máte právo předat podnět k šetření Úřadu pro ochranu osobních údajů. Více informací
Chystáte se prodat nemovitost?
Pomůžeme Vám!
Theleadway banner

Přihlášení k odběru

Nenechte si ujít nejnovější nabídky prodeje rodinných domů v Ústí nad Orlicí.