Prodej bytu 3+kk, Benidorm, Španělsko, 63 m2 (ID: 1645879)
Benidorm
/za nemovitost
Parametry bytu
| Adresa | Benidorm | 
|---|---|
| ID | SPT570C-63 | 
| Stavba | Smíšená | 
| Stav objektu | Novostavba | 
| Patro | 7. z 25 | 
| Vybaveno | Ne | 
| Vlastnictví | Osobní | 
| Užitná plocha | 64 m2 | 
| Podlahová plocha | 63 m2 | 
| Třída energetické náročnosti | G - Mimořádně nehospodárná | 
| Elektřina | 230V | 
| Voda | Vodovod | 
| Garáž | |
| Terasa | |
| Výtah | |
| Parkování | 
Popis
Dovolujeme si Vám nabídnout na prodej nový moderní apartmán v komplexu ve městě Benidorm ve Valencijském regionu ve Španělsku. Celý komplex a rezidenční budova je nově dokončena v listopadu 2024. Vzdálenost k moři a pláži Poniente je přibližně 1 km. 
V komplexu bude k dispozici vybavená posilovna s výhledem na bazén, venkovní bazén, dětský bazén, sprchy a toalety, dvě vířivky, dětské hřiště a sportovní hřiště s tenisovými kurty. Celý komplex bude obklopený zelení s odpočinkovými zónami a pěšími cestičkami. 
Projekt nabízí moderní apartmány s 14 ložnicemi s výhledem na moře a golfové hřiště. Každý apartmán má v ceně parkovací místo a skladovací místnost v suterénu a je vybavený klimatizací a podlahovým vytápěním. 
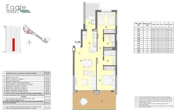
Nabízený apartmán C63 o obytné ploše 63,8 m2 je situovaný v 6. patře. Sestává z chodby, 2 ložnic, 2 koupelen a kuchyně s jídelnou a obývacím pokojem. Z obývacího pokoje a z jedné z ložnic se dostanete na terasu o ploše 19,77 m2. K bytu náleží parkovací místo č. 63 v suterénu.
Přihlášení k odběru
Nenechte si ujít nejnovější nabídky prodeje bytů 3+kk.
 
                                                                                     
                                                                                     
                                                                                     
                                                                                     
                                                                                     
                                                                                     
                                                                                     
                                                                                     
                                                                                     
                                                                                     
                                                                                     
                                                                                     
                                                                                     
                                                                                     
                                                                                     
                                                                                     
                                                                                     
                                                                                     
                                                                                     
                                                                                     
                                                                                     
                                                                                     
                                                                                     
                                                                                     
                                                                                     
                                                                                     
                                                                                     
                         
         
         
         
         
         
         
         
        