Prodej rodinného domu, Kratochvilka, 165 m2 (ID: 1639701)

Kratochvilka

12 700 000 Kč
/za nemovitost
včetně provize, včetně právního servisu
Hypotéka od 56 761 Kč /měs. Chci hypotéku

Parametry domu

AdresaKratochvilka
ID130035
StavbaCihlová
Stav objektuVe výstavbě
Druh objektuŘadový
Užitná plocha165 m2
Plocha pozemku451 m2
Třída energetické náročnostiB - Velmi úsporná
Ukazatel energetické náročnosti66 kWh/m2 za rok
Elektřina230V, 400V
OdpadVeřejná kanalizace
DopravaSilnice, Autobus
VodaVodovod
Topné tělesoPodlahové vytápění
Zdroj topeníElektrokotel
Zdroj teplé vodyBojler - elektro
Garáž

Origo partneři v Kratochvilce

Popis

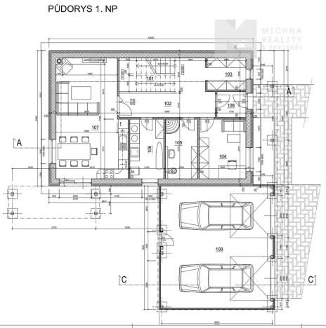
V zastoupení vlastníka nemovitosti Vám nabízíme k prodeji nový zděný rodinný dům 5+kk s garáží pro 2 automobily v obci Kratochvilka.

Hledáte moderní a prostorný domov v klidné lokalitě? Právě pro vás nabízíme novostavbu rodinného domu o dispozici 5+kk na pozemku o velikosti 451 m² v malebné obci Kratochvilka.

RD 1 PRODÁNO, ZKOLAUDOVÁNO
RD 2 ( s garáží pro 2 automobily) - VE VÝSTAVBĚ
RD 3 - BUDE REALIZOVÁNO V DALŠÍ ETAPĚ
RD 4 - BUDE REALIZOVÁNO V DALŠÍ ETAPĚ

Základní informace:
Dispozice: 5+kk
Užitní plocha: 165 m²
Velikost pozemku: 451 m²
Garáž: Pro 2 automobily
Vytápění: Elektrokotel s teplovodním podlahovým topením.

Dokončení: Dům bude dokončen dle moderních standardů včetně obkladů, dveří, sanitární techniky a koupelen (bez kuchyňské linky).

Proč právě tento dům?
Komfort a prostor: Prostorné řešení 5+kk nabízí ideální podmínky pro rodinu i náročnější zájemce.
Moderní technologie: Úsporné elektrické vytápění a podlahové topení zajistí tepelný komfort a efektivní provoz.
Garáž: Dostatek místa pro dvě auta – ideální pro rodiny s více vozy.
Skvělá lokalita: Kratochvilka je příjemná obec nabízející klid a výbornou dostupnost do okolních měst.

Pro více informací či dohodnutí termínu prohlídky neváhejte kontaktovat realitního makléře - Lukáš Michna
MICHNA REALITY & PARTNEŘI, s.r.o.

Splňte si sen o dokonalém bydlení v novém domě – Váš nový domov na Vás čeká!

Makléř

Máte zájem o tento dům?

Tímto, v souladu s nařízením Evropského parlamentu a Rady (EU) 2016/679, v platném znění, prohlašuji, že mi je alespoň 16 let a uděluji tak svůj souhlas se zpracováním zadaných údajů (jméno, telefon, e-mail, ip adresa) společnosti B3 Technology, s.r.o., IČ: 07330600, se sídlem Novostavby 126/23, 435 11 Lom (správce dat), za účelem předání dotazu z tohoto formuláře Vámi vybranému inzerentovi a zpětného kontaktování mé osoby. Osobní údaje bude správce zpracovávat manuálně i automaticky přímo prostřednictvím svých zaměstnanců. Informace předané tímto formulářem budou uloženy v databázi správce maximálně po dobu 10 let. Odvolání souhlasu s uložením a zpracováním poskytnutých dat lze e-mailem na info@origo-reality.cz. V případě podezření na neoprávněné použití Vámi poskytnutých údajů máte právo předat podnět k šetření Úřadu pro ochranu osobních údajů. Více informací
Chystáte se prodat nemovitost?
Pomůžeme Vám!

Přihlášení k odběru

Nenechte si ujít nejnovější nabídky prodeje rodinných domů v Kratochvilce.