Prodej rodinného domu, Veleň - Mírovice, Fr. Pokorného, 199 m2

Fr. Pokorného, Veleň, Mírovice

12 900 000 Kč
/za nemovitost
Hypotéka od 57 655 Kč /měs. Chci hypotéku

Parametry domu

AdresaFr. Pokorného, Veleň, Mírovice
ID15116
StavbaSmíšená
Stav objektuVelmi dobrý
VybavenoČástečně
Typ objektuPřízemní
Druh objektuŘadový
Lokalita objektuKlidná část obce
Užitná plocha132 m2
Zastavěná plocha240 m2
Podlahová plocha199 m2
Plocha pozemku1092 m2
Třída energetické náročnostiG - Mimořádně nehospodárná
Elektřina230V
PlynPlynovod
OdpadVeřejná kanalizace
VodaVodovod, Studna
Garáž
Převod do OV

Origo partneři v Veleni

Popis

Nabízím k prodeji dům 5+1 s velkou zahradou, dílnou se skladem a garáží, na klidném místě v obci Veleň – Mírovice. Poloha domu na konci ulice, ničím nerušené bydlení nedaleko Prahy.

Aktuálně je dům oddělený vnitřní příčkou na dvě samostatné jednotky, s možností opětovného propojení.

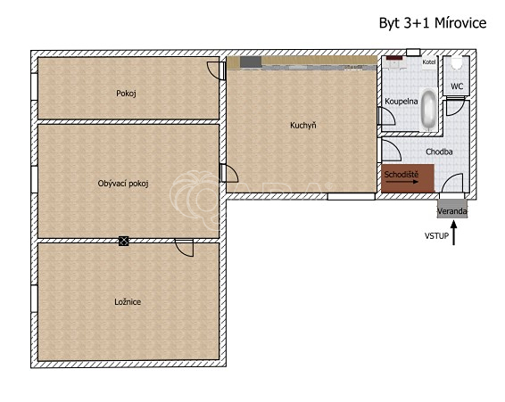
Dispozice částečně podsklepeného domu. Samostatná jednotka 3+1 o velikosti 81,22 m2, s vlastním vchodem: vstupní chodba, kuchyně, obývací pokoj, ložnice, menší pokoj aktuálně sloužící jako pracovna, koupelna se sprchovým koutem a samostatné WC.

Druhá jednotka o dispozici 2+kk a velikosti 50,53 m2: vstupní chodba, obývací pokoj s kuchyňským koutem a vstupem do zahrady, ložnice, šatna, koupelna se sprchovým koutem a WC.

U domu garáž pro dvě auta (39 m2), dílna s kuchyňkou a WC (28,65 m2). Pozemek o celkové velikosti 1092 m2. Dům je napojen na všechny IS: elektřina, vodovod, plyn, kanalizace a studna.

Dům prošel v roce 2017 rekonstrukcí: zateplení včetně fasády, nová okna, rozvody. Každá jednotka má svůj plynový kotel na vytápění a svoje měřidla.

Veleň leží na hranicích hlavního města Prahy, v těsné blízkosti pražské městské části Čakovice a tedy na dosah veškeré občanské vybavenosti. Na nemovitosti nevázne žádné zástavní právo, ani jiná překážka rychlého prodeje. Možnost financování hypotečním úvěrem, se kterým Vám rádi pomůžeme. Více informací na níže uvedené kontaktu.

Makléř

Máte zájem o tento dům?

Tímto, v souladu s nařízením Evropského parlamentu a Rady (EU) 2016/679, v platném znění, prohlašuji, že mi je alespoň 16 let a uděluji tak svůj souhlas se zpracováním zadaných údajů (jméno, telefon, e-mail, ip adresa) společnosti B3 Technology, s.r.o., IČ: 07330600, se sídlem Novostavby 126/23, 435 11 Lom (správce dat), za účelem předání dotazu z tohoto formuláře Vámi vybranému inzerentovi a zpětného kontaktování mé osoby. Osobní údaje bude správce zpracovávat manuálně i automaticky přímo prostřednictvím svých zaměstnanců. Informace předané tímto formulářem budou uloženy v databázi správce maximálně po dobu 10 let. Odvolání souhlasu s uložením a zpracováním poskytnutých dat lze e-mailem na info@origo-reality.cz. V případě podezření na neoprávněné použití Vámi poskytnutých údajů máte právo předat podnět k šetření Úřadu pro ochranu osobních údajů. Více informací
Chystáte se prodat nemovitost?
Pomůžeme Vám!

Přihlášení k odběru

Nenechte si ujít nejnovější nabídky prodeje rodinných domů v Veleni.