Prodej kanceláře, Ústí nad Labem - Ústí nad Labem-centrum, U Chemičky, 1000 m2

U Chemičky, Ústí nad Labem-centrum

Cena na vyžádání
/za nemovitost
Získejte výhodnou HYPOTÉKU Chci hypotéku

Parametry nemovitosti

AdresaU Chemičky, Ústí nad Labem-centrum
ID25003
StavbaCihlová
Stav objektuPřed rekonstrukcí
Typ objektuPatrový
Lokalita objektuCentrum obce
Užitná plocha1000 m2
Třída energetické náročnostiG - Mimořádně nehospodárná
Elektřina230V
PlynPlynovod
OdpadVeřejná kanalizace
TopeníLokální plynové
VodaVodovod
Topné tělesoRadiátory
Zdroj topeníPlynový kondenzační kotel
Zdroj teplé vodyPlynový kondenzační kotel
Výtah
Bezbarierový přístup

Origo partneři v Ústí nad Labem

Okna a dveře

Rekonstrukce

Popis

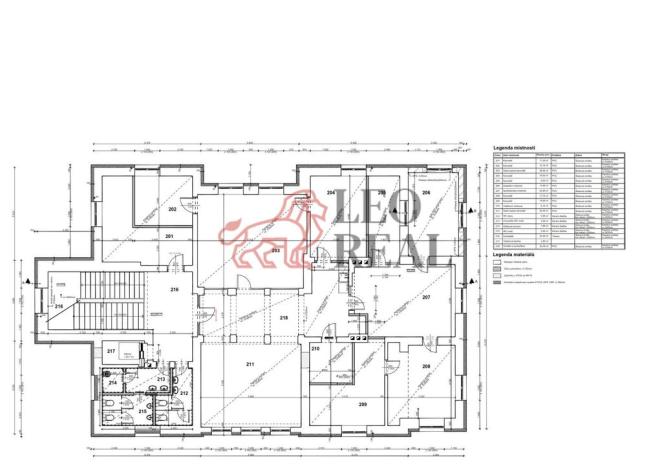
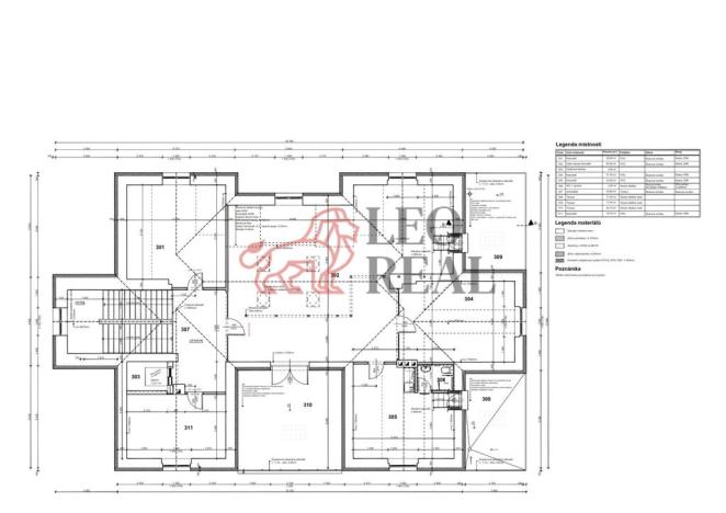
Nabízíme k prodeji historickou budovu bývalého zdravotního střediska. Tato jedinečná nemovitost má celkovou podlažní plochou cca 1000 m². Budova má tři nadzemní podlaží a jedno podzemní podlaží, přičemž jedno nadzemní podlaží je podkroví s potenciálem pro vestavbu.
Nemovitost jak stavebně, tak dle platného územního plánu, skýtá široké spektrum budoucího využití, a to od současného záměru kancelářských prostor, před bytový dům, až po možnost vybudování zdravotního střediska.
Územní plán umožňuje vybudovat:
- bytové i rodinné domy
- ubytovací zařízení
- administrativní a správní budovy místního i nadmístního významu
- peněžní ústavy
- maloobchodní zařízení do 800 m2 odbytových ploch
- veřejné stravování - kulturní zařízení a stavby, galerie, zábavní střediska
- zdravotnická zařízení a zařízení sociální péče
Nemovitost je kompletně stavebně vyčištěná, připravená k rekonstrukci a disponuje platným stavebním povolením.
Nemovitost je strategicky umístěna v širším centru města s dobrým napojením na MHD a stávající železniční stanici Ústí nad Labem – Západ. Zároveň není zatížena památkovou ochranou, což umožňuje větší flexibilitu při rekonstrukci. Tento objekt představuje skvělou příležitost pro zájemce, kteří hledají prostor s historií a potenciálem pro moderní využití.
V prostoru stávající železniční stanice Ústí nad Labem – Západ bude umístěna zastávka vysokorychlostní trati Praha – Berlín. Tato skutečnost promění dotčené území v prémiovou lokalitu s dosahem do centra Prahy za 25 minut.

Makléř

Máte zájem o tuto nemovistost?

Tímto, v souladu s nařízením Evropského parlamentu a Rady (EU) 2016/679, v platném znění, prohlašuji, že mi je alespoň 16 let a uděluji tak svůj souhlas se zpracováním zadaných údajů (jméno, telefon, e-mail, ip adresa) společnosti B3 Technology, s.r.o., IČ: 07330600, se sídlem Novostavby 126/23, 435 11 Lom (správce dat), za účelem předání dotazu z tohoto formuláře Vámi vybranému inzerentovi a zpětného kontaktování mé osoby. Osobní údaje bude správce zpracovávat manuálně i automaticky přímo prostřednictvím svých zaměstnanců. Informace předané tímto formulářem budou uloženy v databázi správce maximálně po dobu 10 let. Odvolání souhlasu s uložením a zpracováním poskytnutých dat lze e-mailem na info@origo-reality.cz. V případě podezření na neoprávněné použití Vámi poskytnutých údajů máte právo předat podnět k šetření Úřadu pro ochranu osobních údajů. Více informací
Chystáte se prodat nemovitost?
Pomůžeme Vám!

Přihlášení k odběru

Nenechte si ujít nejnovější nabídky prodeje kanceláří v Ústí nad Labem.