Prodej chaty, Úžice - Nechyba, 1680 m2 (ID: 1627428)

Úžice, Nechyba

4 095 000 Kč
/za nemovitost
Hypotéka od 18 302 Kč /měs. Chci hypotéku

Parametry domu

AdresaÚžice, Nechyba
ID25677
StavbaSmíšená
Stav objektuDobrý
VybavenoČástečně
Typ objektuPřízemní
Druh objektuSamostatný
Lokalita objektuOkraj obce
Užitná plocha78 m2
Zastavěná plocha55 m2
Podlahová plocha1680 m2
Plocha pozemku1680 m2
Plocha zahrady1625 m2
Třída energetické náročnostiG - Mimořádně nehospodárná
Elektřina230V, 400V
OdpadJímka
KomunikaceAsfaltová, Zpevněná
TelekomunikaceInternet
DopravaSilnice, Autobus
VodaVodovod, Studna
Převod do OV

Origo partneři v Úžicích

Popis

Nabízíme k prodeji rekreační chatu se zahradou o rozloze 1.680 m² v oblíbené oblasti u Sázavy, v části Úžice – Nechyba (okres Kutná Hora). Nemovitost leží na polosamotě u lesa, pár minut od řeky, a nabízí ideální kombinaci klidu, soukromí a výborné dostupnosti do Prahy.

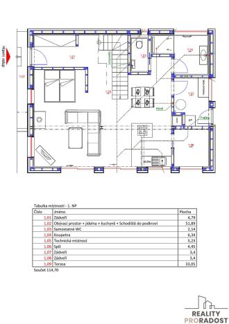
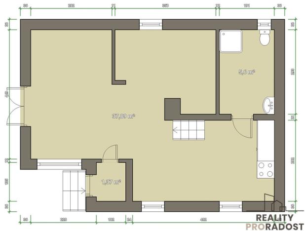
Chata o užitné ploše 78 m² disponuje dvěma pokoji, kuchyňským koutem, koupelnou s toaletou a vstupní chodbou. Podkroví je upraveno jako klidová zóna na spaní či odpočinek s krásnými výhledy do okolní přírody. Objekt je částečně zrekonstruován a připraven k okamžitému užívání. Významným bonusem je platné stavební povolení na rozšíření stavby až na 140 m² zastavěné plochy – ideální příležitost k vytvoření rodinného rekreačního domu podle vlastních představ.

Chata je vybavena krbovými kamny, elektroboilerem na ohřev vody, připojena na obecní vodovod, elektřinu a internet. Odpad je řešen jímkou. Za chatou je technické zázemí, nádrž na dešťovou vodu a přímý vstup do lesa. Na přední části pozemku je vybudováno příjemné posezení, prostor pro grilování i možnost parkování. Zahrada je oplocená, mírně svažitá a svým rozměrem (šíře cca 30 m) nabízí prostor pro zahradničení, výsadbu ovocných stromů i další úpravy. Součástí je také kopaná studna ke společnému užívání.

Lokalita zaujme nejen svou přírodou, ale i skvělou dostupností – 5 minut autem do města Sázava s veškerou občanskou vybaveností, 12 km na D1 a přibližně 50 km do Prahy.

Tato nemovitost představuje ideální volbu pro rodiny i jednotlivce, kteří hledají místo k rekreaci, celoročnímu bydlení nebo jako investici do budoucna. Klidná polosamota, příroda na dosah a současně snadná dostupnost do města vytváří výjimečnou kombinaci, kterou na trhu nenajdete každý den.

Makléř

Máte zájem o tento dům?

Tímto, v souladu s nařízením Evropského parlamentu a Rady (EU) 2016/679, v platném znění, prohlašuji, že mi je alespoň 16 let a uděluji tak svůj souhlas se zpracováním zadaných údajů (jméno, telefon, e-mail, ip adresa) společnosti B3 Technology, s.r.o., IČ: 07330600, se sídlem Novostavby 126/23, 435 11 Lom (správce dat), za účelem předání dotazu z tohoto formuláře Vámi vybranému inzerentovi a zpětného kontaktování mé osoby. Osobní údaje bude správce zpracovávat manuálně i automaticky přímo prostřednictvím svých zaměstnanců. Informace předané tímto formulářem budou uloženy v databázi správce maximálně po dobu 10 let. Odvolání souhlasu s uložením a zpracováním poskytnutých dat lze e-mailem na info@origo-reality.cz. V případě podezření na neoprávněné použití Vámi poskytnutých údajů máte právo předat podnět k šetření Úřadu pro ochranu osobních údajů. Více informací
Chystáte se prodat nemovitost?
Pomůžeme Vám!

Přihlášení k odběru

Nenechte si ujít nejnovější nabídky prodeje chat v Úžicích (okr. Kutná Hora).