Prodej bytu 1+1, Abertamy, Blatenská, 33 m2

Blatenská, Abertamy

3 300 000 Kč
/za nemovitost
včetně právního servisu a odměny zprostředkovatele
Hypotéka od 14 749 Kč /měs. Chci hypotéku

Parametry bytu

AdresaBlatenská, Abertamy
ID650924
StavbaCihlová
Stav objektuPo rekonstrukci
Patro4. z 5
VybavenoAno
VlastnictvíOsobní
Užitná plocha33 m2
Podlahová plocha33 m2
Třída energetické náročnostiG - Mimořádně nehospodárná
Sklep
Parkování

Origo partneři v Abertamech

Popis

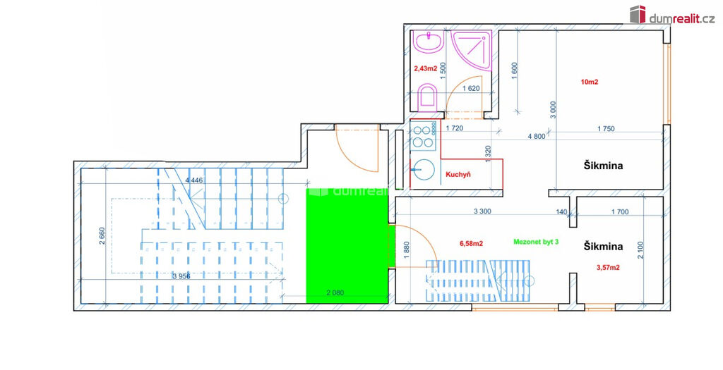
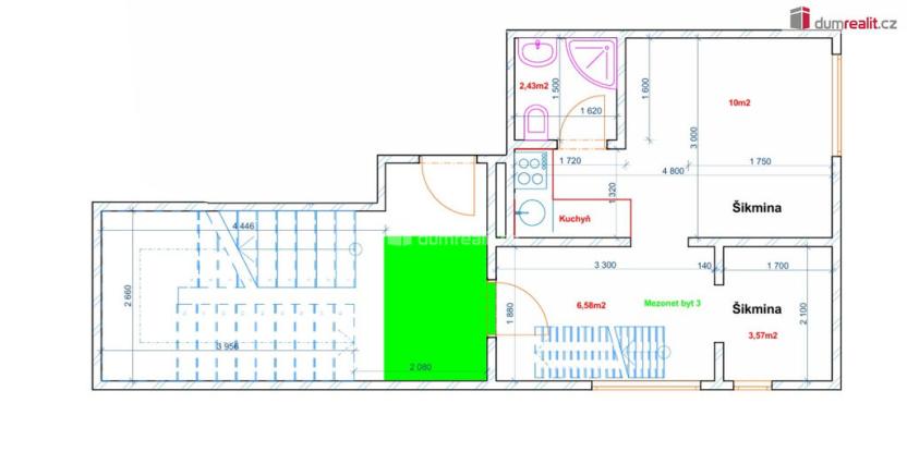
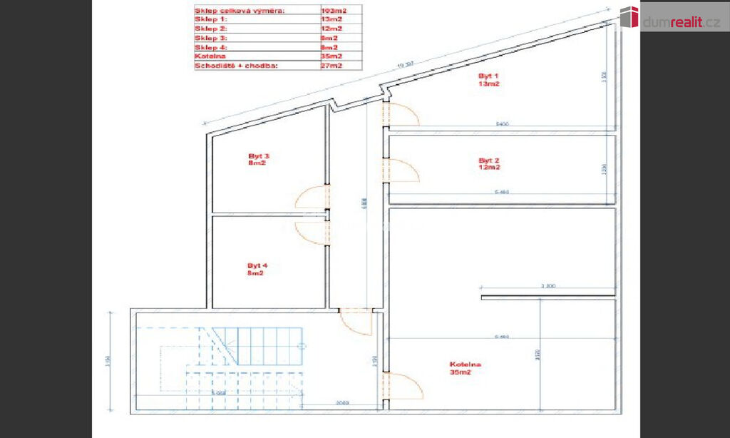
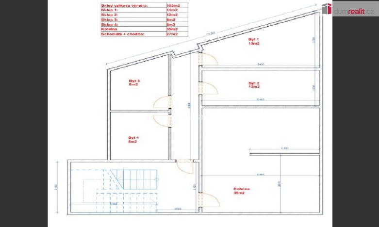
Dumrealit.cz Vám zprostředkuje exkluzivně prodej zajímavého horského apartmánu (mezonetu) 1+1 o velikosti 33 m² v obci Abertamy, okr. Karlovy Vary. Jedná se o byt ve 3. a 4.patře cihlového domu. Byt je zařízen vkusným nábytkem a vybavením. K bytu náleží prostorný zděný sklep o velikosti 8 m² a jedno vyhrazené parkovací stání. Budova z třicátých let 20. století byla kompletně zrekonstruována v letech 2021 – 2022 a je zateplena a opatřena plastovými okny. V přízemí se nachází nebytové prostory v současné době půjčovna kol a prádelna. Pro obytnou část je samostatný vchod. Ve třech nadzemních podlaží se nachází celkem 5 jednotek a společná chodba se schodištěm. V domě je veřejný vodovod, kanalizace a každá jednotka má vlastní elektro rozvaděč s elektroměrem. Z apartmánu je vzhledem k jeho poloze krásný výhled zejména na vrchol Plešivec. Nachází se cca. 100 metrů od náměstí a tedy i občanské vybavenosti. Vzhledem k tomu, že před zadáním do inzerce nebyl předložen PENB, je tento byt v souladu s platným zákonem zařazen do energetické třídy G. Ev. číslo: 650310.

Makléř

Máte zájem o tento byt?

Tímto, v souladu s nařízením Evropského parlamentu a Rady (EU) 2016/679, v platném znění, prohlašuji, že mi je alespoň 16 let a uděluji tak svůj souhlas se zpracováním zadaných údajů (jméno, telefon, e-mail, ip adresa) společnosti B3 Technology, s.r.o., IČ: 07330600, se sídlem Novostavby 126/23, 435 11 Lom (správce dat), za účelem předání dotazu z tohoto formuláře Vámi vybranému inzerentovi a zpětného kontaktování mé osoby. Osobní údaje bude správce zpracovávat manuálně i automaticky přímo prostřednictvím svých zaměstnanců. Informace předané tímto formulářem budou uloženy v databázi správce maximálně po dobu 10 let. Odvolání souhlasu s uložením a zpracováním poskytnutých dat lze e-mailem na info@origo-reality.cz. V případě podezření na neoprávněné použití Vámi poskytnutých údajů máte právo předat podnět k šetření Úřadu pro ochranu osobních údajů. Více informací
Chystáte se prodat nemovitost?
Pomůžeme Vám!

Přihlášení k odběru

Nenechte si ujít nejnovější nabídky prodeje bytů 1+1 v Abertamech.