Prodej rodinného domu, Němčany, 141 m2 (ID: 1614771)

Němčany

3 690 000 Kč
/za nemovitost
Hypotéka od 16 492 Kč /měs. Chci hypotéku

Parametry domu

AdresaNěmčany
ID23569
StavbaCihlová
Stav objektuPřed rekonstrukcí
VybavenoNe
Typ objektuPřízemní
Druh objektuRohový
Užitná plocha127 m2
Zastavěná plocha147 m2
Podlahová plocha141 m2
Plocha pozemku231 m2
Třída energetické náročnostiG - Mimořádně nehospodárná
Elektřina230V, 400V
PlynPlynovod
OdpadVeřejná kanalizace
TopeníÚstřední elektrické
KomunikaceAsfaltová
DopravaDálnice, Silnice, Autobus
VodaVodovod
Sklep
Bezbarierový přístup
Parkování

Origo partneři v Němčanech

Pojištění a finance

Popis

Nabízíme k prodeji rodinný dům v obci Němčany, situovaný v atraktivní lokalitě s výbornou dostupností do Slavkova (7 minut), Bučovic (10 minut) a Brna (20 minut).

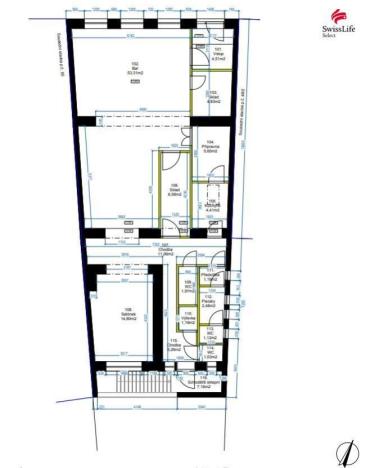
Tento dům je ideální pro přestavbu na tři moderní bytové jednotky o dispozici 4+kk. Každá jednotka má rozlohu 111,8 m a obsahuje prostornou obytnou kuchyni (35 m) a tři pokoje (každý 15 m). Pokoje budou orientovány do ulice, zatímco kuchyně a obytné prostory budou směřovat do vnitrobloku. K jednotkám náleží koupelna, samostatné WC a šatna. Každá bytová jednotka bude mít samostatný vstup ze společného komunikačního jádra a vlastní sklepní kóji v 1. podzemním podlaží. Vstup do objektu bude umístěn ve vnitrobloku.

Dům je navržen jako dvoupodlažní s obytným podkrovím, což zajišťuje dostatek prostoru pro komfortní bydlení i pro vícegenerační rodinu. K dispozici je také parkování s venkovními stáními tři na ulici a tři ve vnitrobloku. Tento projekt nabízí široké možnosti využití, ať už pro vlastní bydlení nebo jako investiční příležitost.

Němčany jsou klidná obec s velmi dobrou dopravní dostupností, ideální pro ty, kteří hledají bydlení mimo městský ruch, ale přitom s výborným spojením do Brna a okolních měst. V obci se nachází základní občanská vybavenost, včetně školy, obchodu, pošty a dalších služeb. Pro milovníky přírody a aktivního odpočinku je k dispozici řada cyklostezek a turistických tras.

Tento projekt je skvélé příležitost nejen pro rodiny, které hledají pohodlné bydlení, ale také pro investory, kteří chtějí využít rostoucího potenciálu této lokality.

Swiss Life Select Vám nabízí pomoc při vyřízení financování této nemovitosti, včetně nezávislého porovnání hypoték a tvorby financování na míru. Díky našim exkluzivním podmínkám a kvalitnímu klientskému servisu můžete být jistí, že pro vás najdeme nejlepší možnosti financování.

Makléř

Máte zájem o tento dům?

Tímto, v souladu s nařízením Evropského parlamentu a Rady (EU) 2016/679, v platném znění, prohlašuji, že mi je alespoň 16 let a uděluji tak svůj souhlas se zpracováním zadaných údajů (jméno, telefon, e-mail, ip adresa) společnosti B3 Technology, s.r.o., IČ: 07330600, se sídlem Novostavby 126/23, 435 11 Lom (správce dat), za účelem předání dotazu z tohoto formuláře Vámi vybranému inzerentovi a zpětného kontaktování mé osoby. Osobní údaje bude správce zpracovávat manuálně i automaticky přímo prostřednictvím svých zaměstnanců. Informace předané tímto formulářem budou uloženy v databázi správce maximálně po dobu 10 let. Odvolání souhlasu s uložením a zpracováním poskytnutých dat lze e-mailem na info@origo-reality.cz. V případě podezření na neoprávněné použití Vámi poskytnutých údajů máte právo předat podnět k šetření Úřadu pro ochranu osobních údajů. Více informací
Chystáte se prodat nemovitost?
Pomůžeme Vám!
Theleadway banner

Přihlášení k odběru

Nenechte si ujít nejnovější nabídky prodeje rodinných domů v Němčanech.