Pronájem skladu, Ostrava - Heřmanice, Orlovská, 2991 m2

Orlovská, Ostrava, Heřmanice

650 000 Kč
/za měsíc
Získejte výhodnou HYPOTÉKU Chci hypotéku

Parametry nemovitosti

AdresaOrlovská, Ostrava, Heřmanice
ID894875
StavbaMontovaná
Stav objektuNovostavba
VybavenoAno
Lokalita objektuOkraj obce
VlastnictvíOsobní
Užitná plocha2991 m2
Plocha pozemku4761 m2

Origo partneři v Ostravě

Pojištění a finance

Popis

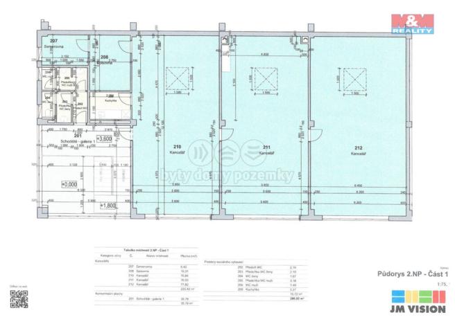
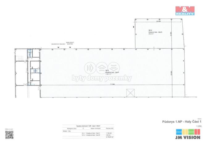
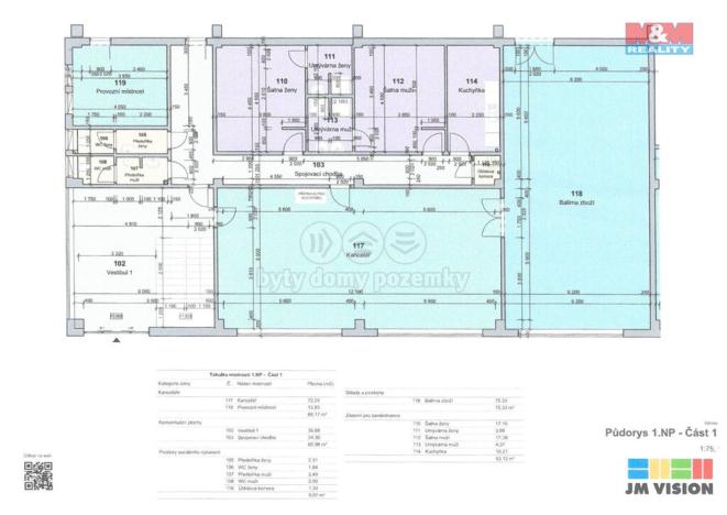
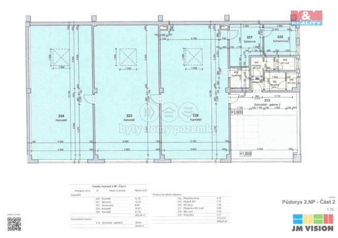
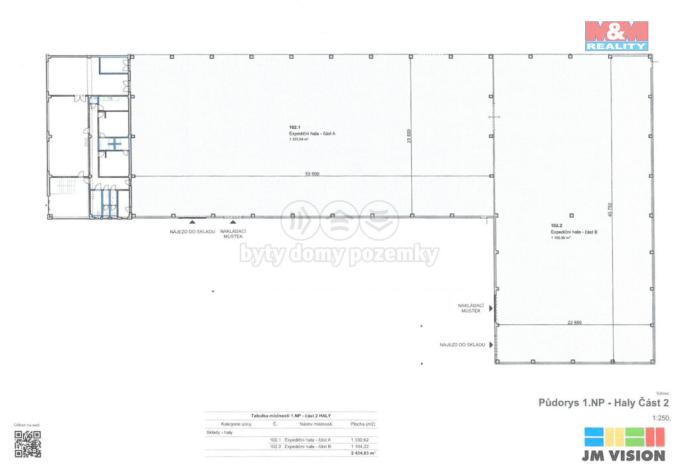
Předmětem pronájmu jsou skladové, výrobní a obchodní prostory včetně kanceláří a zázemí v nově postaveném objektu v Ostravě - Heřmanicích.
Díky své dostupnosti a napojení na polský, český i slovenský trh a díky novým prostorům a blízkosti MHD činí nemovitost lukrativní. Vlastní parkoviště, manipulační plochy, nakládací můstky, kanceláře, šatny kuchyňky a sociální zázemí.
Možnost využití i jako cross-dock.
K dispozici 2 budovy s podobně velkými prostory.
Specifikace:
Budovy jsou určeny pro skladování, distribuci, kanceláře, výdejny a lehké výrobní odvětví.
Samozřejmostí je bezpečnostní systém. Otázky rádi zodpovíme při prohlídce.

Makléř

Máte zájem o tuto nemovistost?

Tímto, v souladu s nařízením Evropského parlamentu a Rady (EU) 2016/679, v platném znění, prohlašuji, že mi je alespoň 16 let a uděluji tak svůj souhlas se zpracováním zadaných údajů (jméno, telefon, e-mail, ip adresa) společnosti B3 Technology, s.r.o., IČ: 07330600, se sídlem Novostavby 126/23, 435 11 Lom (správce dat), za účelem předání dotazu z tohoto formuláře Vámi vybranému inzerentovi a zpětného kontaktování mé osoby. Osobní údaje bude správce zpracovávat manuálně i automaticky přímo prostřednictvím svých zaměstnanců. Informace předané tímto formulářem budou uloženy v databázi správce maximálně po dobu 10 let. Odvolání souhlasu s uložením a zpracováním poskytnutých dat lze e-mailem na info@origo-reality.cz. V případě podezření na neoprávněné použití Vámi poskytnutých údajů máte právo předat podnět k šetření Úřadu pro ochranu osobních údajů. Více informací
Chystáte se prodat nemovitost?
Pomůžeme Vám!
Theleadway banner

Přihlášení k odběru

Nenechte si ujít nejnovější nabídky pronájmu skladů v Ostravě.