Prodej rodinného domu, Plesná, 5. května, 199 m2

5. května, Plesná

1 899 825 Kč
/za nemovitost
Hypotéka od 8 491 Kč /měs. Chci hypotéku

Parametry domu

Adresa5. května, Plesná
ID898463
StavbaCihlová
Stav objektuPřed rekonstrukcí
VybavenoNe
Druh objektuSamostatný
Lokalita objektuCentrum obce
VlastnictvíOsobní
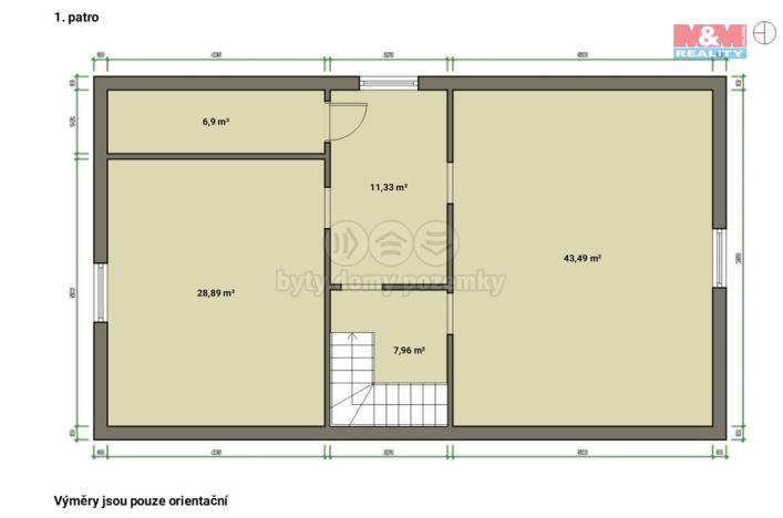
Užitná plocha199 m2
Plocha pozemku588 m2

Origo partneři v Plesné

Popis

Nabízíme k prodeji prostorný rodinný dům v centru obce Plesná. Samostatně stojící cihlová nemovitost s užitnou plochou 199 m² je vhodná k rekonstrukci dle vlastních představ a nabízí velký potenciál.

Dům disponuje celkem 8 místnostmi rozloženými na dvou nadzemních podlažích a v jednom podzemním podlaží, což poskytuje dostatek prostoru pro vícegenerační bydlení nebo kombinaci bydlení a podnikání.

K domu náleží pozemek o výměře 588 m², který lze využít jako zahradu či pro další stavební úpravy. Skvělá poloha v centru obce zajišťuje veškerou občanskou vybavenost v dosahu – obchody, služby i dobré dopravní spojení.

Pokud hledáte nemovitost s potenciálem a možností přizpůsobit si ji podle vlastních potřeb, tato nabídka je ideální volbou. Pro více informací a sjednání prohlídky kontaktujte makléře. S financováním vám rádi pomohou naši specialisté.

Makléř

Máte zájem o tento dům?

Tímto, v souladu s nařízením Evropského parlamentu a Rady (EU) 2016/679, v platném znění, prohlašuji, že mi je alespoň 16 let a uděluji tak svůj souhlas se zpracováním zadaných údajů (jméno, telefon, e-mail, ip adresa) společnosti B3 Technology, s.r.o., IČ: 07330600, se sídlem Novostavby 126/23, 435 11 Lom (správce dat), za účelem předání dotazu z tohoto formuláře Vámi vybranému inzerentovi a zpětného kontaktování mé osoby. Osobní údaje bude správce zpracovávat manuálně i automaticky přímo prostřednictvím svých zaměstnanců. Informace předané tímto formulářem budou uloženy v databázi správce maximálně po dobu 10 let. Odvolání souhlasu s uložením a zpracováním poskytnutých dat lze e-mailem na info@origo-reality.cz. V případě podezření na neoprávněné použití Vámi poskytnutých údajů máte právo předat podnět k šetření Úřadu pro ochranu osobních údajů. Více informací
Chystáte se prodat nemovitost?
Pomůžeme Vám!

Přihlášení k odběru

Nenechte si ujít nejnovější nabídky prodeje rodinných domů v Plesné.