Prodej komerčního pozemku, Moravské Budějovice - Vesce, 16208 m2

Vesce

Cena na vyžádání
/za nemovitost
info v RK
Získejte výhodnou HYPOTÉKU Chci hypotéku

Parametry pozemku

AdresaVesce
ID925
Plocha pozemku16208 m2
Elektřina230V, 400V
PlynPlynovod
OdpadVeřejná kanalizace
KomunikaceAsfaltová, Betonová
DopravaVlak, Silnice, Autobus
VodaVodovod
Bezbarierový přístup

Origo partneři v Moravských Budějovicích

Pojištění a finance

Popis

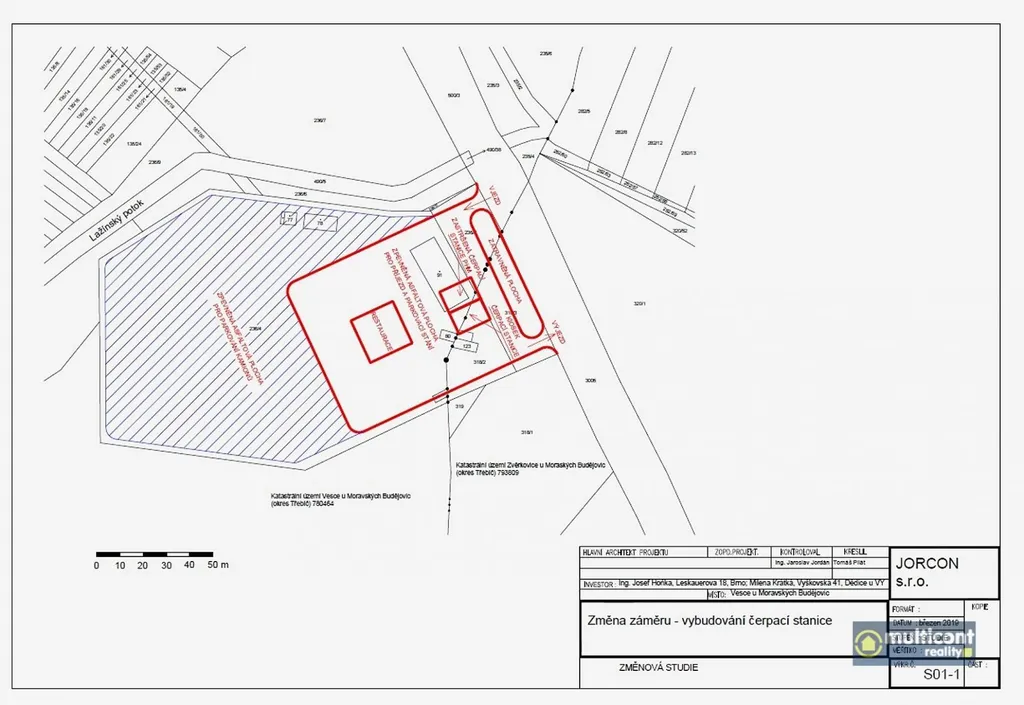
V exkluzivním zastoupení vlastníků si dovolujeme nabídnout pozemek, sousedící se silnicí Jihlava - Znojmo, u Moravských Budějovic, vhodný ke stavbě areálu motorestu, hotelu, čerpací stanice a dalších staveb typu např. Rohlenka. Pozemek se rozprostírá na pozemcích dvou katastrálních území a v minulosti zde byla obalovna, což skýtá výhodu přítomnosti všech inženýrských sítí v naddimenzované podobě, v areálu i samostatný transformátor, je zde možnost vybudování parkoviště pro cca 70 kamionů, tudíž by zde mohla vzniknout i odpočívka, tolik na této trase potřebná. Aktuálně stále v platnosti záměr vybudování čerpací stanice, i se studií, navíc s restaurací a již zmíněným parkovištěm pro kamiony na zpevněné ploše, včetně povolení ŘSD na jimi vybudovaný odbočovací pruh v délce 130 m. Plocha pozemku z větší části zpevněná, zbytky areálu disponují i mostní váhou, zbytkem stavby u ní, oploceno. Více informací podáme vážným zájemcům osobně a kvalifikovaně. Příležitost pro investory, kteří vědí, jaká je dopravní situace na trase Praha-Vídeň a zejména situace v oblasti zaparkování a odstavení vozidel. Nabízíme jim areál, přímo sousedící s touto frekventovanou silnicí, s bohatými možnostmi, jaké pozemek skýtá.

Makléř

Máte zájem o tento pozemek?

Tímto, v souladu s nařízením Evropského parlamentu a Rady (EU) 2016/679, v platném znění, prohlašuji, že mi je alespoň 16 let a uděluji tak svůj souhlas se zpracováním zadaných údajů (jméno, telefon, e-mail, ip adresa) společnosti B3 Technology, s.r.o., IČ: 07330600, se sídlem Novostavby 126/23, 435 11 Lom (správce dat), za účelem předání dotazu z tohoto formuláře Vámi vybranému inzerentovi a zpětného kontaktování mé osoby. Osobní údaje bude správce zpracovávat manuálně i automaticky přímo prostřednictvím svých zaměstnanců. Informace předané tímto formulářem budou uloženy v databázi správce maximálně po dobu 10 let. Odvolání souhlasu s uložením a zpracováním poskytnutých dat lze e-mailem na info@origo-reality.cz. V případě podezření na neoprávněné použití Vámi poskytnutých údajů máte právo předat podnět k šetření Úřadu pro ochranu osobních údajů. Více informací
Chystáte se prodat nemovitost?
Pomůžeme Vám!
Theleadway banner

Přihlášení k odběru

Nenechte si ujít nejnovější nabídky prodeje komerčních pozemků v Moravských Budějovicích.