Prodej rodinného domu, Kosoř, Štěrková, 160 m2 (ID: 1595639)

Štěrková, Kosoř

13 500 000 Kč
/za nemovitost
Hypotéka od 60 337 Kč /měs. Chci hypotéku

Parametry domu

AdresaŠtěrková, Kosoř
IDKosoř
StavbaCihlová
Stav objektuNovostavba
Lokalita objektuKlidná část obce
Užitná plocha150 m2
Zastavěná plocha110 m2
Podlahová plocha160 m2
Plocha pozemku419 m2
Plocha zahrady309 m2
Třída energetické náročnostiB - Velmi úsporná
Elektřina230V
OdpadVeřejná kanalizace
DopravaSilnice, MHD, Autobus
VodaMístní zdroj vody, Retenční nádrž na dešt’ovou vodu
Topné tělesoPodlahové vytápění
Zdroj topeníTepelné čerpadlo
Zdroj teplé vodyTepelné čerpadlo
Garáž
Parkování

Origo partneři v Kosoři

Pojištění a finance

Popis

PRAVÁ POLOVINA DOMU JE JIŽ ZAREZERVOVÁNA.


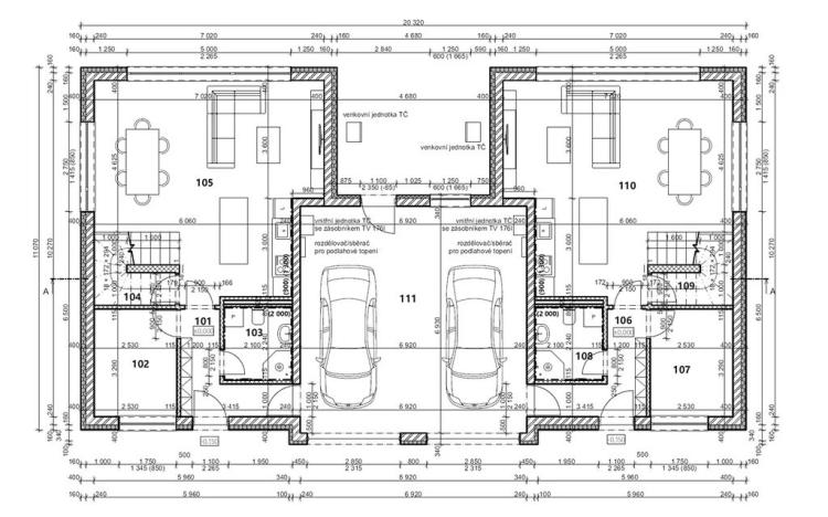
Dovolujeme si Vám nabídnout novostavbu prostorného 6+kk s garáží o celkové podlahové ploše 150 m2.

Dům bude postaven z kvalitních keramických cihel Porotherm s použití technologií tepelného čerpadla. Ty se postarají o snížení měsíčních nákladů na provoz Vaší domácnosti.

Hlavní místností v tomto domě je obývací pokoj spojený s kuchyní o velikosti 38,65 m2, kde budete moci trávit společný čas se svoji rodinou. Je zde velkoformátový HS portál na zahradu, díky kterému budete mít dostatek denního světla a jednoduchý přístup k terase. Orientace JZ.

Další místnost v přízemí je samostatná koupelna se sprchovým koutem, umyvadlem, WC a prostorem pro pračku. V přízemí je i pokoj, který lze využít buď pro návštěvy nebo třeba jako pracovnu. Je zde prostorná chodba, přes kterou vedou dveře do garáže.

V druhém patře jsou 4 pokoje a koupelna s vanou i sprchovým koutem.
V domě bude připraven půdní prostor. Okna jsou orientovaná na SV a JZ

V ceně:

tepelné čerpadlo
podlahy, obklady, dlažba
dveře, zárubně
HS portál
izolační trojskla
příprava na venkovní žaluzie
příprava na kamerový systém
příprava pro video-zvonek
oplocení pozemku
parkovací stání na pozemku
garážová vrata

Pro více informací mě neváhejte kontaktovat. Ráda zašlu podrobné výkresy domu.

Makléř

Máte zájem o tento dům?

Tímto, v souladu s nařízením Evropského parlamentu a Rady (EU) 2016/679, v platném znění, prohlašuji, že mi je alespoň 16 let a uděluji tak svůj souhlas se zpracováním zadaných údajů (jméno, telefon, e-mail, ip adresa) společnosti B3 Technology, s.r.o., IČ: 07330600, se sídlem Novostavby 126/23, 435 11 Lom (správce dat), za účelem předání dotazu z tohoto formuláře Vámi vybranému inzerentovi a zpětného kontaktování mé osoby. Osobní údaje bude správce zpracovávat manuálně i automaticky přímo prostřednictvím svých zaměstnanců. Informace předané tímto formulářem budou uloženy v databázi správce maximálně po dobu 10 let. Odvolání souhlasu s uložením a zpracováním poskytnutých dat lze e-mailem na info@origo-reality.cz. V případě podezření na neoprávněné použití Vámi poskytnutých údajů máte právo předat podnět k šetření Úřadu pro ochranu osobních údajů. Více informací
Chystáte se prodat nemovitost?
Pomůžeme Vám!
Theleadway banner

Přihlášení k odběru

Nenechte si ujít nejnovější nabídky prodeje rodinných domů v Kosoři.