Prodej kanceláře, Ostrava, Českobratrská, 580 m2 (ID: 1595263)

Českobratrská, Moravská Ostrava

26 900 000 Kč
/za nemovitost
Hypotéka od 120 227 Kč /měs. Chci hypotéku

Parametry nemovitosti

AdresaČeskobratrská, Moravská Ostrava
ID1822
StavbaCihlová
Stav objektuPo rekonstrukci
Lokalita objektuCentrum obce
Užitná plocha580 m2
Plocha zahrady719 m2
Třída energetické náročnostiD - Méně úsporná
Ukazatel energetické náročnosti40 kWh/m2 za rok
PlynPlynovod
OdpadVeřejná kanalizace
TelekomunikaceInternet
VodaVodovod
Zdroj topeníPlynový kondenzační kotel
Zdroj teplé vodyPlynový kotel
Garáž
Parkování

Origo partneři v Ostravě

Popis

Reprezentativní sídlo na prestižní adrese v centru Ostravy. Vila, která osloví klienty, hledající pro své podnikatelké aktivity budovu prvorepublikové architektury v kombinaci s požadavky na zázemí odpovídající moderním trendům.

Špičkové zázemí, parkovací stání na pozemku vily, vynikající zviditelnění firmy a mnohem více nabízí tato nabídka prodeje vily na ul. Českobratrská v Moravské Ostravě.

Budova byla postavena dle návrhu architekta Ing. R. Hladiše z roku 1922. Užitná plocha budovy 580m2 plus technické zázemí je rozdělena do čtyř podlaží.
Hlavním vchodem z ulice do budovy vstoupíte do haly s recepcí, dále navazují dvě kanceláře a zasedací místnost se vstupem na balkon.
Ve druhém podlaží se nachází reprezentativní přijímací hala, ze které je vstup do prosklené zasedací místnosti a také do čtyř neprůchozích kanceláří.
Třetí patro tvoří čtyři kanceláře.
Každé podlaží budovy je vybaveno moderní kuchyňkou s myčkou a také pánskými a dámskými toaletami.
Kancelářské prostory v suterénu s vlastním vstupem z ulice mohou být odděleny od ostatních částí vily.
Dvě garážové stání s vraty na dálkové ovládání a technická místnost v suterénu rozšiřuje možnost využití budovy pro potřeby menších skladovacích prostor, krytého parkování atd.

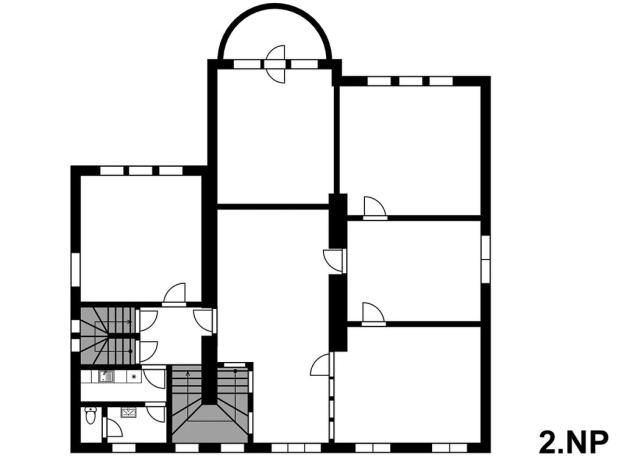
Rozložení místností jednotlivých podlaží můžete prohlédnout v přiložených půdorysech ve fotogalerii.

Dům prošel v roce 2020 rozsáhlou rekonstrukcí, která zahrnovala:
výměnu nových dřevěných oken
kompletní výměnu elektrických a vodovodních rozvodů
instalaci IT rozvodů ve všech kancelářích a zasedacích místnostech
nové podlahy a omítky v celé nemovitosti
kompletní oprava fasády
nové kuchyně a sanitu
instalaci nových kotlů na vytápění (kombinace kondenzačního kotle Brötje a záložní elektrický Bosch)
nové garážové vrata Hörmann
vjezdová brána na dálkové ovládání
kamerový systém a napojení na pult centrální ochrany

Zároveň byly v interiéru zachovány původní prvky z doby prvorepublikové výstavby budovy, zejména interiérové vitráže aj.

Propojení moderního designu s těmito historickými prvky vytváří příjemnou atmosféru v celé budově.

Mezi další významné benefity patří 12 parkovacích míst (dvě garážové a 10 venkovních) a vynikající dostupnost centra Ostravy.

Zveme na prohlídku zájemce, kteří hledají vysoký komfort a nadstandardní zázemí pro sídlo své firmy. Rádi Vám sdělíme veškeré informace, prosím, kontaktujte nás.

Makléř

Máte zájem o tuto nemovistost?

Tímto, v souladu s nařízením Evropského parlamentu a Rady (EU) 2016/679, v platném znění, prohlašuji, že mi je alespoň 16 let a uděluji tak svůj souhlas se zpracováním zadaných údajů (jméno, telefon, e-mail, ip adresa) společnosti B3 Technology, s.r.o., IČ: 07330600, se sídlem Novostavby 126/23, 435 11 Lom (správce dat), za účelem předání dotazu z tohoto formuláře Vámi vybranému inzerentovi a zpětného kontaktování mé osoby. Osobní údaje bude správce zpracovávat manuálně i automaticky přímo prostřednictvím svých zaměstnanců. Informace předané tímto formulářem budou uloženy v databázi správce maximálně po dobu 10 let. Odvolání souhlasu s uložením a zpracováním poskytnutých dat lze e-mailem na info@origo-reality.cz. V případě podezření na neoprávněné použití Vámi poskytnutých údajů máte právo předat podnět k šetření Úřadu pro ochranu osobních údajů. Více informací
Chystáte se prodat nemovitost?
Pomůžeme Vám!

Přihlášení k odběru

Nenechte si ujít nejnovější nabídky prodeje kanceláří v Ostravě.