Remax Monarcha

Prodej pozemku pro bydlení, Olomouc - Nové Sady, Andělská, 2198 m2

Andělská, Nové Sady

2 990 Kč
/za metr čtvereční
Hypotéka od 13 Kč /měs. Chci hypotéku

Parametry pozemku

AdresaAndělská, Nové Sady
ID1029
Plocha pozemku2198 m2
Bezbarierový přístup

Origo partneři v Olomouci

Pojištění a finance

Popis

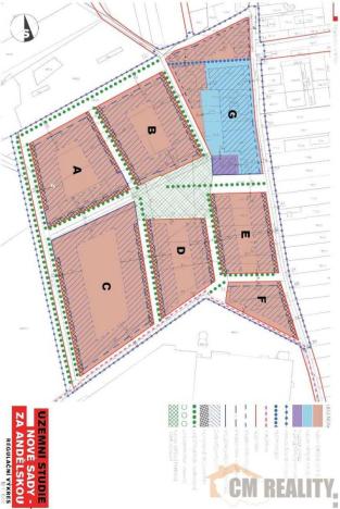
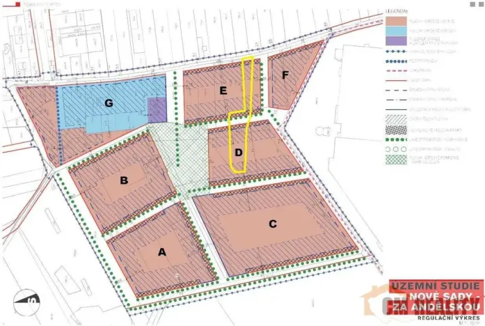
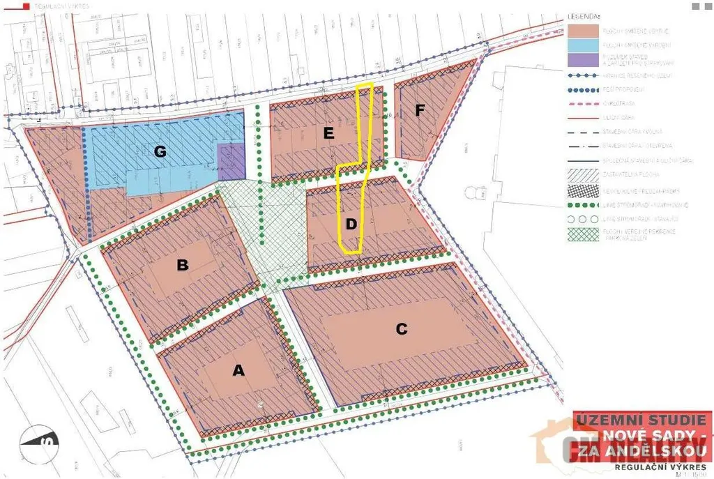
S výhradním zastoupením nabízíme k prodeji pozemek p.č. 180/19 - o výměře 2198 m2 v obci Olomouc, v místní části Nové Sady. Pozemek je veden v územním plánu v plochách smíšené obytné a veřejné rekreace. Na pozemek byla Městem Olomouc vypracována územní studie and #34;Nové Sady - Za Andělskou and #34;, kdy celá lokalita bude určena pro zástavbu rodinnými domy. Navazující pozemek s výměrou necelé 3ha je ve vlastnictví města Olomouc. Výborná investiční příležitost. Ceny stavebně připravených pozemků v Olomouci se pohybují 6tis. až 10tis.Kč/m2 a stále rostou.

Makléř

Máte zájem o tento pozemek?

Tímto, v souladu s nařízením Evropského parlamentu a Rady (EU) 2016/679, v platném znění, prohlašuji, že mi je alespoň 16 let a uděluji tak svůj souhlas se zpracováním zadaných údajů (jméno, telefon, e-mail, ip adresa) společnosti B3 Technology, s.r.o., IČ: 07330600, se sídlem Novostavby 126/23, 435 11 Lom (správce dat), za účelem předání dotazu z tohoto formuláře Vámi vybranému inzerentovi a zpětného kontaktování mé osoby. Osobní údaje bude správce zpracovávat manuálně i automaticky přímo prostřednictvím svých zaměstnanců. Informace předané tímto formulářem budou uloženy v databázi správce maximálně po dobu 10 let. Odvolání souhlasu s uložením a zpracováním poskytnutých dat lze e-mailem na info@origo-reality.cz. V případě podezření na neoprávněné použití Vámi poskytnutých údajů máte právo předat podnět k šetření Úřadu pro ochranu osobních údajů. Více informací
Chystáte se prodat nemovitost?
Pomůžeme Vám!
Theleadway banner

Přihlášení k odběru

Nenechte si ujít nejnovější nabídky prodeje pozemků pro bydlení v Olomouci.