Prodej rodinného domu, Vendolí, 72 m2 (ID: 1576369)

Vendolí

6 000 067 Kč
/za nemovitost
Cena včetně pozemku
Hypotéka od 26 817 Kč /měs. Chci hypotéku

Parametry domu

AdresaVendolí
StavbaDřevěná
Stav objektuNovostavba
Druh objektuSamostatný
Lokalita objektuKlidná část obce
Užitná plocha72 m2
Zastavěná plocha90 m2
Plocha pozemku791 m2
Třída energetické náročnostiA - Mimořádně úsporná
Elektřina230V
PlynPlynovod
OdpadVeřejná kanalizace
KomunikaceAsfaltová
VodaVodovod
Zdroj topeníTepelné čerpadlo
Bezbarierový přístup

Origo partneři v Vendolí

Pojištění a finance

Popis

Ve spolupráci s RD Rýmařov Vám nabízíme možnost dodávky nízkoenergetického domu na klíč v lokalitě obce Vendolí u Svitav.

Kompletní výstavba domu je do tří měsíců od vydání stavebního povolení. Projektová dokumentace, tepelné čerpadlo, fotovoltaika i základová deska jsou v ceně domu!

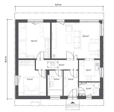
Dům na klíč nabízí tři prostorné pokoje o užitné ploše 72 m². Svou velikostí je tento dům ideální pro pár nebo menší rodinu. Jeho výhodou je jednoduchý tvar a zastavěná plocha 90 m², díky které se hodí téměř na kterýkoliv pozemek.

Tato moderní dřevostavba v projektu nabízí bezbariérové a energeticky úsporné bydlení s fotovoltaickými panely, tepelným čerpadlem a nádrží na srážkovou vodu, což přispívá k ekologickému provozu a nižším nákladům na energie. Díky stavebnímu projektu je možné realizovat individuální úpravy podle vašich představ. Samostatně stojící dům v klidné části obce s celkovou plochou pozemku o rozloze 791 m²(ev.č.27) skýtá dostatek soukromí i prostoru k příjemnému rodinnému životu.

Pro výběr dalšího typu domu a více informací kontaktujte realitní kancelář.

Makléř

Máte zájem o tento dům?

Tímto, v souladu s nařízením Evropského parlamentu a Rady (EU) 2016/679, v platném znění, prohlašuji, že mi je alespoň 16 let a uděluji tak svůj souhlas se zpracováním zadaných údajů (jméno, telefon, e-mail, ip adresa) společnosti B3 Technology, s.r.o., IČ: 07330600, se sídlem Novostavby 126/23, 435 11 Lom (správce dat), za účelem předání dotazu z tohoto formuláře Vámi vybranému inzerentovi a zpětného kontaktování mé osoby. Osobní údaje bude správce zpracovávat manuálně i automaticky přímo prostřednictvím svých zaměstnanců. Informace předané tímto formulářem budou uloženy v databázi správce maximálně po dobu 10 let. Odvolání souhlasu s uložením a zpracováním poskytnutých dat lze e-mailem na info@origo-reality.cz. V případě podezření na neoprávněné použití Vámi poskytnutých údajů máte právo předat podnět k šetření Úřadu pro ochranu osobních údajů. Více informací
Chystáte se prodat nemovitost?
Pomůžeme Vám!
Theleadway banner

Přihlášení k odběru

Nenechte si ujít nejnovější nabídky prodeje rodinných domů v Vendolí.