Prodej pozemku pro bydlení, Praha - Kunratice, Strouhalova, 934 m2 (ID: 1570426)

Strouhalova, Praha 4, Kunratice

21 990 000 Kč
/za nemovitost
Hypotéka od 98 282 Kč /měs. Chci hypotéku

Parametry pozemku

AdresaStrouhalova, Praha 4, Kunratice
IDN04202
Lokalita objektuKlidná část obce
Podlahová plocha934 m2
Plocha pozemku934 m2
DopravaVlak, Dálnice, Silnice, MHD, Autobus

Origo partneři v Praze 4

Stěhovací služby

Výkup a prodej starého nábytku

Pojištění a finance

Popis

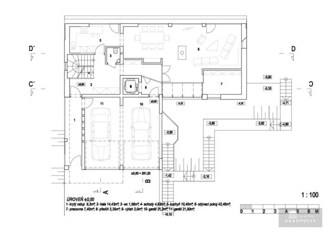
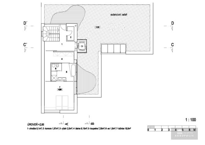
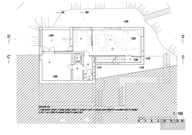
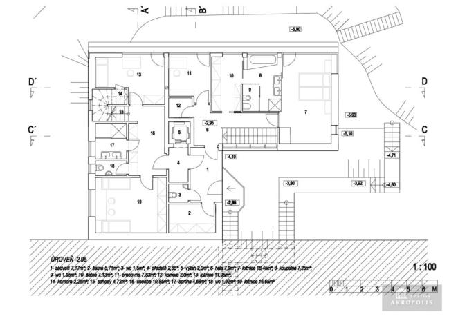
Nabízíme k prodeji pozemek o celkové výměře 934 m2 v oblíbené lokalitě Praha-Kunratice, ulice Strouhalova. Pozemek je připraven k výstavbě, s veškerými inženýrskými sítěmi, což poskytuje ideální podmínky pro realizaci stavebního záměru. Na pozemku byl vypracován projekt pro výstavbu vícegeneračního domu. Pozemek tak přináší jedinečnou příležitost pro investory i zájemce o rodinné bydlení.

V minulosti bylo vydáno územní rozhodnutí pro výstavbu rodinného domu se čtyřmi podlažími a se 2 bytovými jednotkami a s vestavěnou garáží pro 2 park. stání (Dle stavebního zákona ovšem lze rodinný dům rozdělit až na 3 bytové jednotky). Jedná se o objekt z jedné strany zapuštěný do svahu o 1.PP + 2.NP+podkroví. Na základě vydaného rozhodnutí byla povolena výjimka na vyšší zastavitelnost plochy pozemku na 31,9%. Stavba bude napojena na inženýrské sítě jako je vodovod, kanalizace a elektřina. Pro vytápění budou sloužit 2 vrty pro tepelná čerpadla.

Pozemek je rozdělen do dvou funkčních částí: na části o výměře 465 m2 platí regulativ OB – čistě obytné, což umožňuje výstavbu rodinného domu, a část o velikosti 469 m2 má regulativ ZMK – zeleň městská a krajinná, která nabízí možnosti k vybudování zelené plochy, zahrady nebo parku, čímž se zajišťuje dostatek prostoru pro rekreační účely a příjemné prostředí pro relaxaci.

Lokalita Kunratice je velmi vyhledávanou částí Prahy s kompletní občanskou vybaveností v okolí. V docházkové vzdálenosti se nacházejí mateřské a základní školy, což ocení především rodiny s dětmi. Pro sportovní nadšence jsou v blízkosti různé sportovní areály, hřiště, a možnost krásných procházek nebo cyklistiky v okolí Kunratického lesa. Kunratice jsou známé také svou přátelskou komunitou a příjemným prostředím.

V okolí najdete také širokou nabídku obchodů a supermarketů, které vám zajistí pohodlné nákupy bez nutnosti dojíždět. V oblasti se nachází pošta, lékařské služby a několik restaurací a kaváren, které přináší pohodlí a komfort pro každodenní potřeby obyvatel. Dopravní dostupnost do centra Prahy je velmi dobrá, s pravidelnými autobusovými linkami MHD (linky193 a 203) směřujícími na stanici metra Kačerov (linka C), což zajišťuje snadný přístup do města i širšího okolí.

Tento pozemek nabízí ideální kombinaci klidného prostředí, dostupnosti veškerých služeb a výborné dopravní dostupnosti do centra Prahy.

Makléř

Máte zájem o tento pozemek?

Tímto, v souladu s nařízením Evropského parlamentu a Rady (EU) 2016/679, v platném znění, prohlašuji, že mi je alespoň 16 let a uděluji tak svůj souhlas se zpracováním zadaných údajů (jméno, telefon, e-mail, ip adresa) společnosti B3 Technology, s.r.o., IČ: 07330600, se sídlem Novostavby 126/23, 435 11 Lom (správce dat), za účelem předání dotazu z tohoto formuláře Vámi vybranému inzerentovi a zpětného kontaktování mé osoby. Osobní údaje bude správce zpracovávat manuálně i automaticky přímo prostřednictvím svých zaměstnanců. Informace předané tímto formulářem budou uloženy v databázi správce maximálně po dobu 10 let. Odvolání souhlasu s uložením a zpracováním poskytnutých dat lze e-mailem na info@origo-reality.cz. V případě podezření na neoprávněné použití Vámi poskytnutých údajů máte právo předat podnět k šetření Úřadu pro ochranu osobních údajů. Více informací
Chystáte se prodat nemovitost?
Pomůžeme Vám!
Theleadway banner

Přihlášení k odběru

Nenechte si ujít nejnovější nabídky prodeje pozemků pro bydlení v Praze 4.