Pronájem kanceláře, Velká Bíteš, 55 m2

Velká Bíteš

19 800 Kč
/za měsíc
Včetně energii a DPH.
Získejte výhodnou HYPOTÉKU Chci hypotéku

Parametry nemovitosti

AdresaVelká Bíteš
ID144-NP02891
StavbaCihlová
Stav objektuNovostavba
Typ objektuPatrový
Lokalita objektuKlidná část obce
Užitná plocha55 m2
Třída energetické náročnostiB - Velmi úsporná
Elektřina230V, 400V
OdpadVeřejná kanalizace
KomunikaceAsfaltová
TelekomunikaceInternet, Kabelové rozvody
DopravaVlak, Dálnice, Silnice, Autobus
VodaVodovod
Převod do OV
Parkování

Origo partneři v Velké Bíteši

Popis

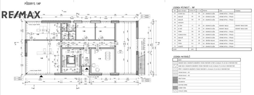
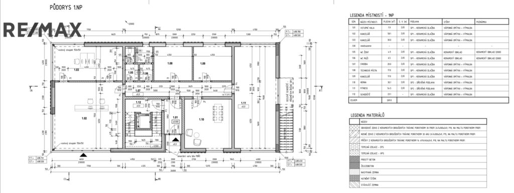
Pokud hledáte ideální prostor pro vaše podnikání nebo jiné profesionální aktivity, máme pro vás skvělou nabídku! V uzavřeném areálu ve Velké Bíteši je k dispozici prostor o velikosti 55 m² v přízemí jedné z budov. Cena za pronájem činí 19 800 Kč měsíčně, a zahrnuje nájem, zákonné DPH, topení, elektřinu a vodu. Na půdorysném plánku budovy se jedná o prostor 1.11.

Prostor je součástí moderní budovy, ve které najdete i společné toalety a kuchyňku. Areál je uzavřený, s dostatkem parkovacích míst, zeleně a relaxačních zón, což zajišťuje klidné a pohodlné prostředí pro vás i vaše klienty.

Tento prostor je ideální pro různorodé využití, ať už potřebujete kanceláře, showroom nebo jiné profesionální zázemí. Areál je strategicky umístěn v těsné blízkosti dálnice D1 (exit Devět Křížů), což umožňuje snadný přístup jak pro vás, tak pro vaše klienty. Klidné okolí plné zeleně vytváří příjemnou atmosféru a zázemí.

Celý areál zaujímá plochu 6 189 m² a zahrnuje dvě moderní dvoupatrové budovy s podlahovou plochou 550 m² každá, celkem tedy 1 100 m². Tyto prostory lze flexibilně upravit podle vašich potřeb – od kanceláří a showroomů po bytové jednotky. Nabízí se také možnost pronajmout celou budovu nebo pouze jednotlivé jednotky.

Areál je vhodný pro širokou škálu podnikatelských záměrů, jako jsou vzorkové prodejny, kanceláře nebo showroomy. S flexibilními možnostmi pronájmu a přizpůsobení prostor podle vašich představ se tento areál může stát ideálním místem pro vaši činnost.

Pro bližší informace a domluvení prohlídky nás neváhejte kontaktovat.

Makléř

Máte zájem o tuto nemovistost?

Tímto, v souladu s nařízením Evropského parlamentu a Rady (EU) 2016/679, v platném znění, prohlašuji, že mi je alespoň 16 let a uděluji tak svůj souhlas se zpracováním zadaných údajů (jméno, telefon, e-mail, ip adresa) společnosti B3 Technology, s.r.o., IČ: 07330600, se sídlem Novostavby 126/23, 435 11 Lom (správce dat), za účelem předání dotazu z tohoto formuláře Vámi vybranému inzerentovi a zpětného kontaktování mé osoby. Osobní údaje bude správce zpracovávat manuálně i automaticky přímo prostřednictvím svých zaměstnanců. Informace předané tímto formulářem budou uloženy v databázi správce maximálně po dobu 10 let. Odvolání souhlasu s uložením a zpracováním poskytnutých dat lze e-mailem na info@origo-reality.cz. V případě podezření na neoprávněné použití Vámi poskytnutých údajů máte právo předat podnět k šetření Úřadu pro ochranu osobních údajů. Více informací
Chystáte se prodat nemovitost?
Pomůžeme Vám!

Přihlášení k odběru

Nenechte si ujít nejnovější nabídky pronájmu kanceláří v Velké Bíteši.