Prodej pozemku pro bydlení, Staré Město, Zerzavice, 374 m2

Zerzavice, Staré Město

7 265 000 Kč
/za nemovitost
včetně poplatků, včetně provize, včetně právního servisu
Hypotéka od 32 470 Kč /měs. Chci hypotéku

Parametry pozemku

AdresaZerzavice, Staré Město
ID00132
Plocha pozemku374 m2
Elektřina120V, 230V
PlynPlynovod
OdpadVeřejná kanalizace
KomunikaceAsfaltová
DopravaVlak, Dálnice, Silnice, MHD, Autobus
VodaVodovod

Origo partneři v Starém Městu

Popis

Nabízíme vám exkluzivně ke koupi stavební pozemek s vydaným stavebním povolením ve vyhledávané lokalitě Starého Města u Uherského Hradiště, jen pár kroků od Mostu J. A. Bati, který pomyslně propojuje Staré Město s centrem Uherského Hradiště.

Parametry pozemku:

Rozloha: 374 m², ideální pro rodinné bydlení i komerční využití.
Stav: Zcela rovinatý, oplocený a připravený na výstavbu. Původní stavba byla odstraněna před méně než rokem.
Inženýrské sítě: Kompletní (elektřina, voda, plyn, kanalizace).

Pozemek je vhodný pro:

- Rodinný dům.
- Bytový dům.
- Komerční objekt nebo kombinaci komerčních prostor s bydlením.

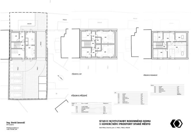
Inspirace k realizaci:

- K dispozici je architektonická studie moderní stavby (vizualizace v galerii).
- Možnost převzetí již vydaného stavebního povolení, které vám umožní okamžitě zahájit výstavbu.

Lokalita:
Pozemek se nachází ve vyhledávané části města s výbornou občanskou vybaveností, včetně škol, obchodů a služeb. Blízkost centra Starého Města i Uherského Hradiště zaručuje pohodlné bydlení i podnikání.

Tento pozemek je ideální volbou pro ty, kteří hledají atraktivní místo s jednoduchým zahájením stavby.

S financováním nemovitosti Vám rádi pomůžeme. Pro více informací či případnou prohlídku kontaktujte realitního makléře.

Makléř

Máte zájem o tento pozemek?

Tímto, v souladu s nařízením Evropského parlamentu a Rady (EU) 2016/679, v platném znění, prohlašuji, že mi je alespoň 16 let a uděluji tak svůj souhlas se zpracováním zadaných údajů (jméno, telefon, e-mail, ip adresa) společnosti B3 Technology, s.r.o., IČ: 07330600, se sídlem Novostavby 126/23, 435 11 Lom (správce dat), za účelem předání dotazu z tohoto formuláře Vámi vybranému inzerentovi a zpětného kontaktování mé osoby. Osobní údaje bude správce zpracovávat manuálně i automaticky přímo prostřednictvím svých zaměstnanců. Informace předané tímto formulářem budou uloženy v databázi správce maximálně po dobu 10 let. Odvolání souhlasu s uložením a zpracováním poskytnutých dat lze e-mailem na info@origo-reality.cz. V případě podezření na neoprávněné použití Vámi poskytnutých údajů máte právo předat podnět k šetření Úřadu pro ochranu osobních údajů. Více informací
Chystáte se prodat nemovitost?
Pomůžeme Vám!

Přihlášení k odběru

Nenechte si ujít nejnovější nabídky prodeje pozemků pro bydlení v Starém Městu (okr. Uherské Hradiště).