Prodej pozemku pro bydlení, Mostkovice, 419 m2 (ID: 1544250)

Mostkovice

4 900 Kč
/za metr čtvereční
Kupní cena zahrnuje právní servis a provizi RK
Hypotéka od 22 Kč /měs. Chci hypotéku

Parametry pozemku

AdresaMostkovice
ID6895
Lokalita objektuKlidná část obce
Plocha pozemku419 m2
KomunikaceDlážděná, Zpevněná
Převod do OV

Origo partneři v Mostkovicích

Popis

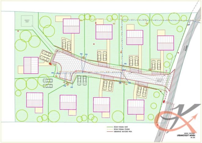
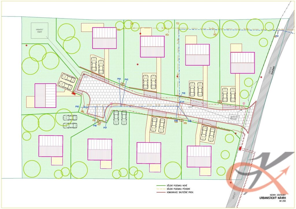
Nabízíme k prodeji pozemek č. 6 o výměře 419m2 v exkluzivní klidné lokalitě s výhledem na Velký Kosíř a obec Ohrozim v těsné blízkosti lesa a rekreační oblasti Plumlovské přehrady, která je ideální pro aktivní trávení volného času, jako je cyklistika, procházky, vodní sporty, rybaření či relaxace v přírodě.
Lokalita umožňuje pohodové bydlení na klidném místě v těsné blízkosti přírody a zároveň mít v dosahu veškerou občanskou vybavenost obce Mostkovice potažmo skvěle dostupného města Prostějova (vzdálenost od centra města 4 km).
Pozemek je přístupný po obecní asfaltové komunikaci a nabízí připravené inženýrské sítě (vodovod, kanalizace, elektřina a veřejné osvětlení) na hranici pozemku.
Pozemek se nachází na ulici Chatařská v obci Mostkovice a je umístěn v mírném svahu. V územním plánu jsou plochy vymezeny jako plochy hromadné rekreace, které umožňují výstavbu rekreačních objektů pro hromadnou nebo individuální rekreaci.

V nabídce jsou následující pozemky:

Pozemek č.1 364 m2 – PRODÁNO
Pozemek č.2 417 m2 – PRODÁNO
Pozemek č.3 417 m2 – PRODÁNO
Pozemek č.4 450 m2 – PRODÁNO
Pozemek č.5 427 m2 – REZERVACE
Pozemek č.6 419 m2 – volný
Pozemek č.7 457 m2 – PRODÁNO
Pozemek č.8 454 m2 – PRODÁNO
Pozemek č.9 484 m2 – PRODÁNO

Makléř

Máte zájem o tento pozemek?

Tímto, v souladu s nařízením Evropského parlamentu a Rady (EU) 2016/679, v platném znění, prohlašuji, že mi je alespoň 16 let a uděluji tak svůj souhlas se zpracováním zadaných údajů (jméno, telefon, e-mail, ip adresa) společnosti B3 Technology, s.r.o., IČ: 07330600, se sídlem Novostavby 126/23, 435 11 Lom (správce dat), za účelem předání dotazu z tohoto formuláře Vámi vybranému inzerentovi a zpětného kontaktování mé osoby. Osobní údaje bude správce zpracovávat manuálně i automaticky přímo prostřednictvím svých zaměstnanců. Informace předané tímto formulářem budou uloženy v databázi správce maximálně po dobu 10 let. Odvolání souhlasu s uložením a zpracováním poskytnutých dat lze e-mailem na info@origo-reality.cz. V případě podezření na neoprávněné použití Vámi poskytnutých údajů máte právo předat podnět k šetření Úřadu pro ochranu osobních údajů. Více informací
Chystáte se prodat nemovitost?
Pomůžeme Vám!

Přihlášení k odběru

Nenechte si ujít nejnovější nabídky prodeje pozemků pro bydlení v Mostkovicích.