Remax Power 2

Pronájem obchodního prostoru, Příbram - Příbram VI-Březové Hory, náměstí Hynka Kličky, 123 m2

náměstí Hynka Kličky, Příbram VI-Březové Hory

25 000 Kč
/za měsíc
+ služby a zálohy energií na nájemce
Získejte výhodnou HYPOTÉKU Chci hypotéku

Parametry nemovitosti

Adresanáměstí Hynka Kličky, Příbram VI-Březové Hory
IDN03907
StavbaCihlová
Stav objektuPo rekonstrukci
VybavenoAno
Typ objektuPatrový
Lokalita objektuCentrum obce
VlastnictvíOsobní
Užitná plocha123 m2
Zastavěná plocha123 m2
Podlahová plocha123 m2
Plocha pozemku123 m2
Třída energetické náročnostiG - Mimořádně nehospodárná
Elektřina230V
PlynPlynovod
TopeníÚstřední elektrické
KomunikaceAsfaltová
TelekomunikaceTelefon, Internet, Satelit, Ostatní
DopravaSilnice, MHD, Autobus
VodaVodovod
Terasa

Origo partneři v Příbrami

Revize elektrických zařízení

Popis

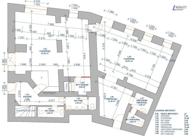
Nabízíme Vám k pronájmu komerční prostor na pěkném, viditelném a frekventovaném místě, Příbrami VI – Březové Hory, v ulici náměstí Hynka Kličky.

Jedná se prostor, kde je nyní provoz cukrárny.

Prostory jsou volné a připravené ihned k dispozici.

Prostor je situován ve dvou částech v přízemí (tři vchody), ideální přpadně pro kavárnu, cukrárnu, fastfood, restauraci atd.

V přízemí se nachází pak odělené tolatey a vstup na venkoní terasu s posezením o výměře 24 m2,
možnost parkování na přilehlém náměstí.

Výborná lokalita vzhledem k přilehlé, frekventované komunikaci Husovi ulice směr Plzeň hlavní tah.
U náměstí Hornické muzeum Příbram, vyhledávané turisty. V místě kompletní obč. vybavenost.

Prostor je volný ihned k dispozici. EPNB připravujeme, proto prozatím uvádíme třídu G.

V případě zájmu zapotřebí uhradit první nájem vč. služeb (energie na zájemce, el. a plyn), vratnou kauci a provizi za zprostředkování vč. DPH.

Více info u RK. Majitel si vyhrazuje právo vybrat si zájemce.

Makléř

Máte zájem o tuto nemovistost?

Tímto, v souladu s nařízením Evropského parlamentu a Rady (EU) 2016/679, v platném znění, prohlašuji, že mi je alespoň 16 let a uděluji tak svůj souhlas se zpracováním zadaných údajů (jméno, telefon, e-mail, ip adresa) společnosti B3 Technology, s.r.o., IČ: 07330600, se sídlem Novostavby 126/23, 435 11 Lom (správce dat), za účelem předání dotazu z tohoto formuláře Vámi vybranému inzerentovi a zpětného kontaktování mé osoby. Osobní údaje bude správce zpracovávat manuálně i automaticky přímo prostřednictvím svých zaměstnanců. Informace předané tímto formulářem budou uloženy v databázi správce maximálně po dobu 10 let. Odvolání souhlasu s uložením a zpracováním poskytnutých dat lze e-mailem na info@origo-reality.cz. V případě podezření na neoprávněné použití Vámi poskytnutých údajů máte právo předat podnět k šetření Úřadu pro ochranu osobních údajů. Více informací
Chystáte se prodat nemovitost?
Pomůžeme Vám!