Prodej bytu 2+kk, El Puig de Santa Maria, Španělsko, 46 m2

El Puig de Santa Maria

233 000 €
/za nemovitost

Parametry bytu

AdresaEl Puig de Santa Maria
IDSPT750Fa-76
StavbaSmíšená
Stav objektuVe výstavbě
Patro2. z 7
VybavenoNe
VlastnictvíOsobní
Užitná plocha46 m2
Podlahová plocha46 m2
Třída energetické náročnostiB - Velmi úsporná
Garáž
Terasa
Parkování

Origo partneři

Popis

Dovolujeme si Vám nabídnout na prodej apartmán v moderním komplexu ve městě El Puig de Santa Maria, poblíž města Valencie ve Španělsku. Jedná se o projekt nového moderního komplexu, který bude nabízet apartmány s 13 ložnicemi, penthousy s 23 ložnicemi a řadové rodinné domky s 3 ložnicemi. Dokončení výstavby je naplánováno na duben 2026.

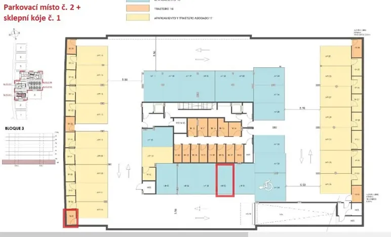
Nabízený apartmán Fa76 o obytné ploše 46,02 m2 se nachází v 1. patře sedmipodlažní budovy (Blok 3). Sestává z chodby, 1 ložnice, 1 koupelny, komory, obývacího pokoje s kuchyní a jídelnou a terasy o ploše 25,10 m2, na kterou se dostanete z obývacího pokoje a z ložnice. K apartmánu náleží parkovací místo č. 2 a sklepní kóje č. 1 v suterénu budovy.

Komplex nabízí atraktivní plážový klub, kde budou pro rezidenty k dispozici 3 venkovní bazény (vyhřívaný, dětský a letní) s prostorem s lehátky a slunečníky k relaxaci, dětské hřiště, sportovní hřiště, tenisové kurty, toalety a sprchy. V klubu bude také velká posilovna v 1. patře, společenské prostory a místnost na jógu ve 2. patře.

Komplex je velmi atraktivní i díky své lokalitě, nabízí přístup přímo na promenádu, k moři a pláži je to přibližně 150 m a do Valencie se dostanete do 15 min. cesty autem. Město El Puig stejně jako Valencie, je plné historických památek, ve Valencii navíc můžete navštívit akvárium, stadion Mestalla či různé přírodní parky.

Makléř

Máte zájem o tento byt?

Tímto, v souladu s nařízením Evropského parlamentu a Rady (EU) 2016/679, v platném znění, prohlašuji, že mi je alespoň 16 let a uděluji tak svůj souhlas se zpracováním zadaných údajů (jméno, telefon, e-mail, ip adresa) společnosti B3 Technology, s.r.o., IČ: 07330600, se sídlem Novostavby 126/23, 435 11 Lom (správce dat), za účelem předání dotazu z tohoto formuláře Vámi vybranému inzerentovi a zpětného kontaktování mé osoby. Osobní údaje bude správce zpracovávat manuálně i automaticky přímo prostřednictvím svých zaměstnanců. Informace předané tímto formulářem budou uloženy v databázi správce maximálně po dobu 10 let. Odvolání souhlasu s uložením a zpracováním poskytnutých dat lze e-mailem na info@origo-reality.cz. V případě podezření na neoprávněné použití Vámi poskytnutých údajů máte právo předat podnět k šetření Úřadu pro ochranu osobních údajů. Více informací
Chystáte se prodat nemovitost?
Pomůžeme Vám!

Přihlášení k odběru

Nenechte si ujít nejnovější nabídky prodeje bytů 2+kk.