Pronájem obchodního prostoru, Holešov, Palackého, 178 m2

Palackého, Holešov

49 840 Kč
/za měsíc
Získejte výhodnou HYPOTÉKU Chci hypotéku

Parametry nemovitosti

AdresaPalackého, Holešov
ID0121
StavbaSmíšená
Stav objektuNovostavba
VybavenoČástečně
Lokalita objektuCentrum obce
Užitná plocha178 m2
Zastavěná plocha2595 m2
Podlahová plocha178 m2
Třída energetické náročnostiG - Mimořádně nehospodárná
PlynPlynovod
OdpadVeřejná kanalizace
Parkování

Origo partneři v Holešově

Popis

Nabízíme Vám k pronájmu tento obchodní prostor v obchodním centru Irisovka v Holešově na ulici Palackého.

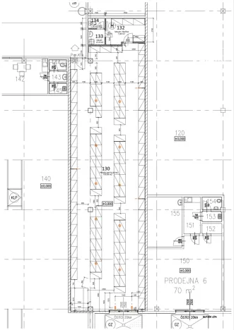
Jedná se o obchodní jednotku o velikosti 178m2 - aktuálně je zde obchod BANQUET, který koncem ledna 2025 končí. Ve fotografiích je také půdorys a situační nákres - prostro BANQUET.

Prostor se skládá z hlavní prodejní části + zázemí - šatny, WC, sklad. Prostor je přístupný ze zadní strany budovy (pro zásobování), kde jsou také v ceně nájmu obsaženy vyhrazená parkovací místa pro zaměstnance. Prostor bude vyklizený a připravený pro nového nájemce od 1.2.2024.

Nájem činí 280,-Kč/m2/měsíc + 35,-Kč/m2/měsíc poplatky za služby (zimní a letní úklid, veřejné osvětlení, vyvezení košů před prodejnou atd.) + energie. Elektřina a voda mají samostatné měřiče.

Celková měsíční platba za nájem činí 49.840,- Kč + 6.230,-Kč služby + energie.

Vratná kauce činí 2 nájmy.

Prohlídka možná kdykoliv - v případ zájmu mě prosím kontaktujte.

Makléř

Máte zájem o tuto nemovistost?

Tímto, v souladu s nařízením Evropského parlamentu a Rady (EU) 2016/679, v platném znění, prohlašuji, že mi je alespoň 16 let a uděluji tak svůj souhlas se zpracováním zadaných údajů (jméno, telefon, e-mail, ip adresa) společnosti B3 Technology, s.r.o., IČ: 07330600, se sídlem Novostavby 126/23, 435 11 Lom (správce dat), za účelem předání dotazu z tohoto formuláře Vámi vybranému inzerentovi a zpětného kontaktování mé osoby. Osobní údaje bude správce zpracovávat manuálně i automaticky přímo prostřednictvím svých zaměstnanců. Informace předané tímto formulářem budou uloženy v databázi správce maximálně po dobu 10 let. Odvolání souhlasu s uložením a zpracováním poskytnutých dat lze e-mailem na info@origo-reality.cz. V případě podezření na neoprávněné použití Vámi poskytnutých údajů máte právo předat podnět k šetření Úřadu pro ochranu osobních údajů. Více informací
Chystáte se prodat nemovitost?
Pomůžeme Vám!

Přihlášení k odběru

Nenechte si ujít nejnovější nabídky pronájmu obchodních prostor v Holešově.