Pronájem kanceláře, Praha - Nové Město, Na Poříčí, 653 m2

Na Poříčí, Praha, Nové Město

23 €
/za metr čtvereční / měsíc
Získejte výhodnou HYPOTÉKU Chci hypotéku

Parametry nemovitosti

AdresaNa Poříčí, Praha, Nové Město
ID143
StavbaSmíšená
Stav objektuVelmi dobrý
Patro4. z 5
Užitná plocha653 m2
Třída energetické náročnostiC - Úsporná
Garáž
Výtah
Parkování

Origo partneři v Praze 1

Stěhovací služby

Výkup a prodej starého nábytku

Popis

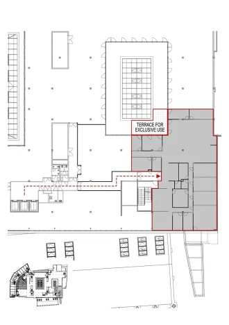
Pronájem kanceláře v lokalitě Praha 1 - Nové Město. Exkluzivní a reprezentativní kancelářské prostory k pronájmu na prestižní adrese přímo v centru Prahy, ve čtvrtém podlaží moderní multifunkční budovy Palladium. Prostorná kancelář disponuje plochou 653 m2 a přímým přístupem do pětipatrového nákupního centra.  Samotný komplex disponuje celkovou plochou 115 000 m2 a nabízí více než 180 obchodů, fitness, banky, kavárny, restaurace specializující se na kuchyně z celého světa. Původ budovy ve stylu, jaký známe dnes, sahá do 18. století, kdy sloužila jako kasárny. Historie daného místa však začíná v dávnější minulosti, během výstavby moderní podoby interiéru nákupního centra byly odhaleny základy staveb již z 12. století. V roce 1636 zde byl založen klášter sv. Jozefa, který stojí vedle Palladia dodnes. Vynikající dopravní dostupnost městskou hromadnou dopravou, vchod do budovy leží přímo vedle tramvajové a autobusové zastávky a stanice metra Náměstí Republiky. Václavské náměstí, Masarykovo nádraží, Staroměstské náměstí, Florenc či Dlouhá třída jsou vzdálené necelých deset minut chůze. V blízkém okolí se kromě přilehlého nákupního centra nachází mnoho dalších restaurací, barů, obchodů a kulturního vyžití. Standardy: veškeré potřebné vybavení, konferenční místnosti, vysokorychlostní Wi-Fi, vybavené kuchyně, recepce, parkování v podzemních garážích. K dispozici ihned. Pro kompletní informace o nabídce kancelářských prostor nás neváhejte kontaktovat.

Makléř

Máte zájem o tuto nemovistost?

Tímto, v souladu s nařízením Evropského parlamentu a Rady (EU) 2016/679, v platném znění, prohlašuji, že mi je alespoň 16 let a uděluji tak svůj souhlas se zpracováním zadaných údajů (jméno, telefon, e-mail, ip adresa) společnosti B3 Technology, s.r.o., IČ: 07330600, se sídlem Novostavby 126/23, 435 11 Lom (správce dat), za účelem předání dotazu z tohoto formuláře Vámi vybranému inzerentovi a zpětného kontaktování mé osoby. Osobní údaje bude správce zpracovávat manuálně i automaticky přímo prostřednictvím svých zaměstnanců. Informace předané tímto formulářem budou uloženy v databázi správce maximálně po dobu 10 let. Odvolání souhlasu s uložením a zpracováním poskytnutých dat lze e-mailem na info@origo-reality.cz. V případě podezření na neoprávněné použití Vámi poskytnutých údajů máte právo předat podnět k šetření Úřadu pro ochranu osobních údajů. Více informací
Chystáte se prodat nemovitost?
Pomůžeme Vám!