Prodej rodinného domu, Postupice, 188 m2

Postupice, Dobříčkov

Rezervováno
11 700 000 Kč
/za nemovitost
REZERVOVÁNO
Hypotéka od 52 292 Kč /měs. Chci hypotéku

Parametry domu

StavRezervováno
AdresaPostupice, Dobříčkov
IDNKVE5666
StavbaCihlová
Stav objektuDobrý
Druh objektuSamostatný
Lokalita objektuOkraj obce
Užitná plocha188 m2
Zastavěná plocha246 m2
Podlahová plocha188 m2
Plocha pozemku1086 m2
Třída energetické náročnostiC - Úsporná
Elektřina230V, 400V
OdpadČOV pro celý objekt
KomunikaceZpevněná
DopravaVlak, Silnice
VodaStudna
Topné tělesoPodlahové vytápění
Zdroj topeníTepelné čerpadlo, Krb
Garáž
Bezbarierový přístup
Parkování

Origo partneři v Postupicích

Popis

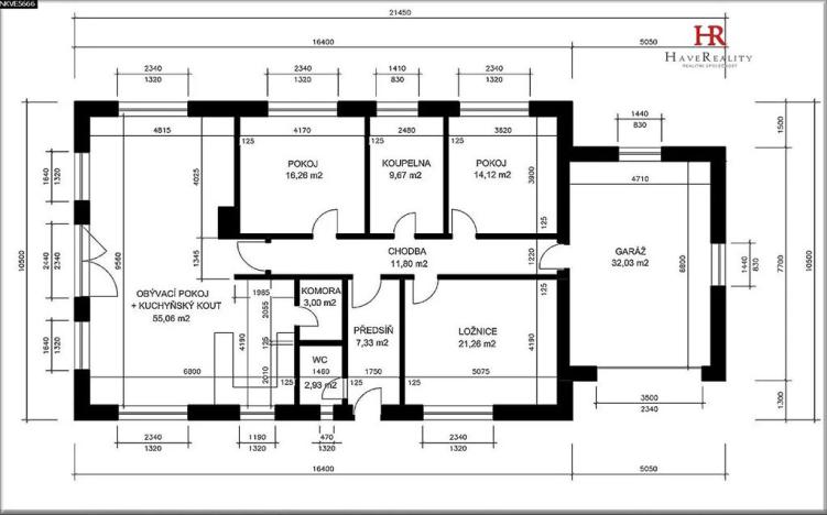
Doporučujeme ke koupi prostorný, přízemní rodinný dům s terasou, garáží a vkusně založenou, již vzrostlou zahradou ve velmi pěkné lokalitě nedaleko Benešova. Nemovitost se nabízí včetně zařízení a vybavení z cca 80 %. Dům stojí na vlastním oploceném pozemku o celkové výměře parcely 1086 m2. Zastavěná plocha a nádvoří 246 m2. Zastavěná plocha domem 211 m2 + 16 m2 zahradní domek + zastřešená terasa 35 m2 – hliníková pergola. Užitná plocha 188 m2. Vnitřní podlahová plocha domu bez garáže, terasy a zahradního domku - 141 m2. Dům není podsklepený. Příjezdová komunikace – zpevněná. IS – vlastní vrtaná studna, elektřina, ČOV na pozemku, ze které lze čistou vodu jímat do 9 m3 nádrže a využívat pro závlahu zahrady. Topení: tepelné čerpadlo (vzduch – voda) – zajišťující ohřev teplé vody i podlahové vodní vytápění domu. Sekundární zdroj vytápění – krb. Zásobník na TUV o objemu 190 l. Podlahy – dlažba a vinylové podlahy. Plastová okna – trojsklo, opatřena sítěmi proti hmyzu. Betonová taška. Dálkově ovládaná samonosná pojezdová brána – 4,5 m. Dům splňuje nízkoenergetický standard – obvodové zdivo 30 cm + 14 cm zateplení, izolace stropu – Climatizer plus. Roční náklady na provoz domu cca 45.000,- Kč. PENB – třída C. Dispozice domu: 4+kk/terasa: přízemí – obývací pokoj s kuchyňským koutem, spíží a vstupem na zastřešenou terasu situovanou na západ, 1 pracovna, 2 ložnice, koupelna se sprchovým koutem, vanou, WC a 2 umyvadla, samostatné WC s umyvadlem, garáž o výměře 32 m2 přístupná i z interiéru domu. Dům má zabezpečovací zařízení s alarmem – Jablotron. Okolí domu je již zastaveno novými rodinnými domy a vilkami. Předmětem prodeje je i podíl na přístupové zpevněné komunikaci zahrnutý již v ceně nemovitosti. Vlaková zastávka je v dosahu cca 300 m. Velmi dobrá dostupnost do cca 6 km vzdáleného Benešova, kde je veškerá občanská vybavenost. Vzdálenost do Prahy 50 km. Nemovitost pochází z roku 2014. V případě zájmu o koupi Vám rádi zprostředkujeme sjednání úvěru, právní servis, úschovu finančních prostředků.

Makléř

Máte zájem o tento dům?

Tímto, v souladu s nařízením Evropského parlamentu a Rady (EU) 2016/679, v platném znění, prohlašuji, že mi je alespoň 16 let a uděluji tak svůj souhlas se zpracováním zadaných údajů (jméno, telefon, e-mail, ip adresa) společnosti B3 Technology, s.r.o., IČ: 07330600, se sídlem Novostavby 126/23, 435 11 Lom (správce dat), za účelem předání dotazu z tohoto formuláře Vámi vybranému inzerentovi a zpětného kontaktování mé osoby. Osobní údaje bude správce zpracovávat manuálně i automaticky přímo prostřednictvím svých zaměstnanců. Informace předané tímto formulářem budou uloženy v databázi správce maximálně po dobu 10 let. Odvolání souhlasu s uložením a zpracováním poskytnutých dat lze e-mailem na info@origo-reality.cz. V případě podezření na neoprávněné použití Vámi poskytnutých údajů máte právo předat podnět k šetření Úřadu pro ochranu osobních údajů. Více informací
Chystáte se prodat nemovitost?
Pomůžeme Vám!

Přihlášení k odběru

Nenechte si ujít nejnovější nabídky prodeje rodinných domů v Postupicích.