Prodej pozemku pro bydlení, Červená Řečice, 289 m2

Červená Řečice, Popelištná

499 900 Kč
/za nemovitost
Hypotéka od 2 234 Kč /měs. Chci hypotéku

Parametry pozemku

AdresaČervená Řečice, Popelištná
ID143-NP06817
Lokalita objektuOkraj obce
Plocha pozemku289 m2
Převod do OV

Origo partneři v Červené Řečici

Pojištění a finance

Popis

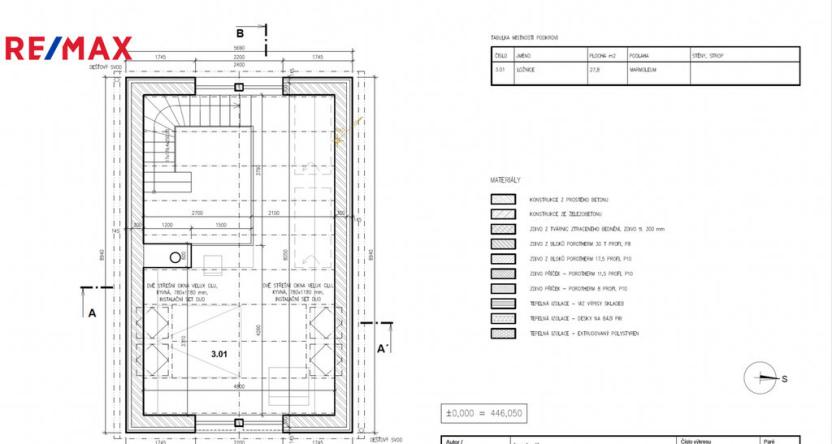
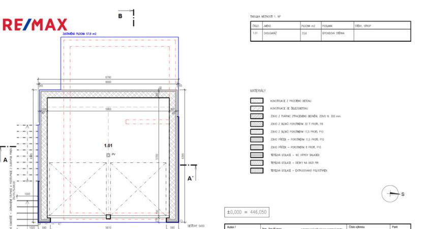
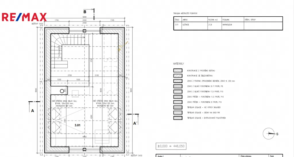
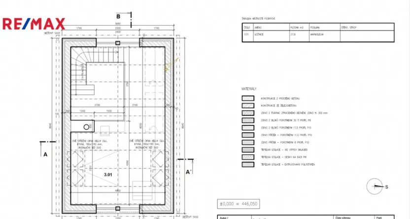
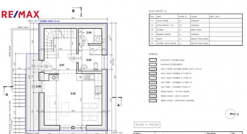
Jedná se o prodej stavebního pozemku určeného k výstavbě rekreačního objektu o výměře 289m2. Pozemek je umístěn 700m od vodní nádrže Trnávka, v okrajové části obce Popelištná. Je zpracována projektová dokumentace pro výstavbu rekreačního objektu o zast. ploše 57,8m2, která zahrnuje 1.NP s užitnou plochou 33,6m2 (dvojgaráž), 2.NP s užitnou plochou 32,7m2 (pobytové místnosti), podkroví 27,8m2 (pobytové místnosti), balkon 10,1m2. Elektřina se nachází na hranici pozemku, odkanalizování je dle projektové dokumentace řešeno jímkou na vyvážení, dešťová voda do retenční nádrže s přepadem do vsaku, voda z vlastní studny. Pro více informací volejte makléře nabídky. Prodávající si vyhrazuje právo vybrat kupujícího na základě jím zvolených kritérií.

Makléř

Máte zájem o tento pozemek?

Tímto, v souladu s nařízením Evropského parlamentu a Rady (EU) 2016/679, v platném znění, prohlašuji, že mi je alespoň 16 let a uděluji tak svůj souhlas se zpracováním zadaných údajů (jméno, telefon, e-mail, ip adresa) společnosti B3 Technology, s.r.o., IČ: 07330600, se sídlem Novostavby 126/23, 435 11 Lom (správce dat), za účelem předání dotazu z tohoto formuláře Vámi vybranému inzerentovi a zpětného kontaktování mé osoby. Osobní údaje bude správce zpracovávat manuálně i automaticky přímo prostřednictvím svých zaměstnanců. Informace předané tímto formulářem budou uloženy v databázi správce maximálně po dobu 10 let. Odvolání souhlasu s uložením a zpracováním poskytnutých dat lze e-mailem na info@origo-reality.cz. V případě podezření na neoprávněné použití Vámi poskytnutých údajů máte právo předat podnět k šetření Úřadu pro ochranu osobních údajů. Více informací
Chystáte se prodat nemovitost?
Pomůžeme Vám!
Theleadway banner

Přihlášení k odběru

Nenechte si ujít nejnovější nabídky prodeje pozemků pro bydlení v Červené Řečici.