Remax Power 2

Prodej rodinného domu, Milešov, 74 m2 (ID: 1480033)

Milešov, Klenovice

5 992 900 Kč
/za nemovitost
jedná se o cenu za jednu bytovou jednotku ve dvojdomě
Hypotéka od 26 785 Kč /měs. Chci hypotéku

Parametry domu

Náklady na bydlení3000
AdresaMilešov, Klenovice
StavbaCihlová
Stav objektuProjekt
VybavenoČástečně
Typ objektuPatrový
Lokalita objektuKlidná část obce
Užitná plocha74 m2
Zastavěná plocha87 m2
Plocha pozemku670 m2
Třída energetické náročnostiB - Velmi úsporná
Výtah
Bezbarierový přístup
Parkování

Origo partneři v Milešově

Revize elektrických zařízení

Popis

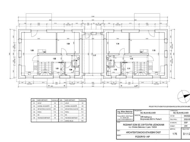
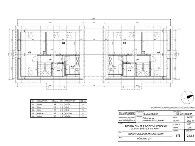
Nabízíme výstavbu dvou dvojdomů v obci Klenovice u Orlické přehrady. Místo, kde jste krátkou procházkou u vody i v lese. Klenovice u Milešova se nachází cca 83 km od Prahy – hodinu cesty po Strakonické (D4). Klenovice jsou malá vesnička spadající pod obec Milešov, v nedalekých Klučenicích je obchod. V blízkosti je kromě vodních sportů, také mnoho výletních míst – rozhledna Milada, hrad Orlík a Zvíkov, zážitkový park Zeměráj v Kovářově. Okolí je protkáno cyklistickými stezkami a vesnice leží kousek od trasy pochodu Praha-Prčice a závodu Vltava run. Je to místo vhodné pro odpočinek i zábavu, s hlubokými lesy a vltavskou přehradou a zároveň velmi dobře dostupné z Prahy.
Domy jsou projektovány zděné, vybaveny okny s izolačními trojskly, na střechu je používáná betonová krytina a každá bytová jednotka má své vlastní tepelné čerpadlo od značky NIBE. V ceně je zahrnuta také sanita, interiérové dveře i podlahové krytiny. Na pozemku je vybudována studna a jímka. Projektovou dokumentaci je možné na přání klientů upravit, případně je možné vybraný dům i rozšířit. Výstavba může začít ihned, na stavbu je již vydáno stavební povolení.
Neváhejte se na nás obrátit a domluvte si schůzku ještě dnes.

Makléř

Máte zájem o tento dům?

Tímto, v souladu s nařízením Evropského parlamentu a Rady (EU) 2016/679, v platném znění, prohlašuji, že mi je alespoň 16 let a uděluji tak svůj souhlas se zpracováním zadaných údajů (jméno, telefon, e-mail, ip adresa) společnosti B3 Technology, s.r.o., IČ: 07330600, se sídlem Novostavby 126/23, 435 11 Lom (správce dat), za účelem předání dotazu z tohoto formuláře Vámi vybranému inzerentovi a zpětného kontaktování mé osoby. Osobní údaje bude správce zpracovávat manuálně i automaticky přímo prostřednictvím svých zaměstnanců. Informace předané tímto formulářem budou uloženy v databázi správce maximálně po dobu 10 let. Odvolání souhlasu s uložením a zpracováním poskytnutých dat lze e-mailem na info@origo-reality.cz. V případě podezření na neoprávněné použití Vámi poskytnutých údajů máte právo předat podnět k šetření Úřadu pro ochranu osobních údajů. Více informací
Chystáte se prodat nemovitost?
Pomůžeme Vám!

Přihlášení k odběru

Nenechte si ujít nejnovější nabídky prodeje rodinných domů v Milešově.