Pronájem skladu, Tuchoměřice, Ke Kopanině, 1000 m2 (ID: 1451740)

Ke Kopanině, Tuchoměřice

185 Kč
/za metr čtvereční / měsíc
, vlastní energie a služby areálu
Získejte výhodnou HYPOTÉKU Chci hypotéku

Parametry nemovitosti

AdresaKe Kopanině, Tuchoměřice
ID2570
StavbaSkeletová
Stav objektuNovostavba
Typ objektuPřízemní
Užitná plocha1000 m2
PlynPlynovod
OdpadVeřejná kanalizace
VodaVodovod
Bezbarierový přístup

Origo partneři v Tuchoměřicích

Popis

Nabízíme do nájmu ( rezervace ) moderní logistické a výrobní haly poblíž letiště Praha Ruzyně. Haly dělitelné od 1000 m2 až po celky cca 3 000, 5000 a 10 000 m2. Zázemí v halách, K předání přelom roku 2024/2025 až 05 2025
----------------------------------------------------------------------------
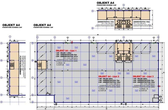
Hala A4 - celkem 3247 m2 skladů - dělitelné na 2x 1600 m2 + zázemí.
Výška 7,5 m, 4x nákladní vstupy, vytápěno
Hala B2 - celkem 4930 m2 skladů - dělitelné na 3x 1650 m2 + zázemí.
Výška 8 m, 6x nákladní vstupy, vytápěno
Hala B1 - celkem 4930 m2 skladů - dělitelné na 3x 1650 m2 + zázemí.
Výška 10 m, 6x nákladní vstupy, vytápěno
--------------------------------------------------------------------------------

Vydáno pravomocné územní rozhodnutí o povolení stavby a Stavební povolení. Rezervace IHNED. Započetí stavby 05/2024 a očekávaná kolaudace již v 01/2025. Individuální úpravy možné, zázemí pro dopravu. V případě nájmu většího celku bude možno jednat o ceně. Min. doba nájmu je 5 let. Veškeré dokumentace a půdorysy k dispozici a po domluvě bezplatně zašleme. Velice strategické místo pro nákladní dopravu !

ARCHA - průmyslová kancelář ( Praha, Beroun )
Mob: 608 827 778
archa.sklady@seznam.cz
www.archacs.cz

Makléř

Máte zájem o tuto nemovistost?

Tímto, v souladu s nařízením Evropského parlamentu a Rady (EU) 2016/679, v platném znění, prohlašuji, že mi je alespoň 16 let a uděluji tak svůj souhlas se zpracováním zadaných údajů (jméno, telefon, e-mail, ip adresa) společnosti B3 Technology, s.r.o., IČ: 07330600, se sídlem Novostavby 126/23, 435 11 Lom (správce dat), za účelem předání dotazu z tohoto formuláře Vámi vybranému inzerentovi a zpětného kontaktování mé osoby. Osobní údaje bude správce zpracovávat manuálně i automaticky přímo prostřednictvím svých zaměstnanců. Informace předané tímto formulářem budou uloženy v databázi správce maximálně po dobu 10 let. Odvolání souhlasu s uložením a zpracováním poskytnutých dat lze e-mailem na info@origo-reality.cz. V případě podezření na neoprávněné použití Vámi poskytnutých údajů máte právo předat podnět k šetření Úřadu pro ochranu osobních údajů. Více informací
Chystáte se prodat nemovitost?
Pomůžeme Vám!

Přihlášení k odběru

Nenechte si ujít nejnovější nabídky pronájmu skladů v Tuchoměřicích.