Pronájem ordinace, Sokolov, nábřeží Petra Bezruče, 47 m2

nábřeží Petra Bezruče, Sokolov

15 000 Kč
/za měsíc
Měsíční zálohy na energie 2000
Získejte výhodnou HYPOTÉKU Chci hypotéku

Parametry nemovitosti

Adresanábřeží Petra Bezruče, Sokolov
ID0024-2024
StavbaCihlová
Stav objektuVelmi dobrý
Patro1. z 3
VybavenoČástečně
Typ objektuPřízemní
Lokalita objektuCentrum obce
Užitná plocha47 m2
Zastavěná plocha437 m2
Podlahová plocha47 m2
Třída energetické náročnostiD - Méně úsporná
PlynPlynovod
OdpadVeřejná kanalizace
TopeníÚstřední dálkové
KomunikaceAsfaltová
TelekomunikaceInternet, Kabelová televize
DopravaVlak, Dálnice, Silnice, MHD, Autobus
Výtah
Bezbarierový přístup
Převod do OV

Origo partneři v Sokolově

Popis

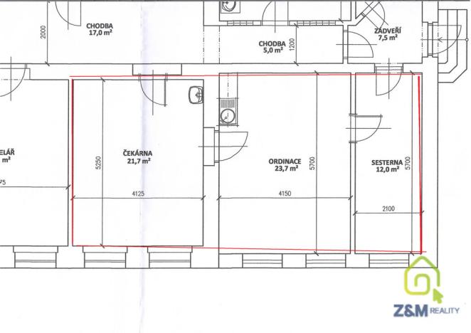
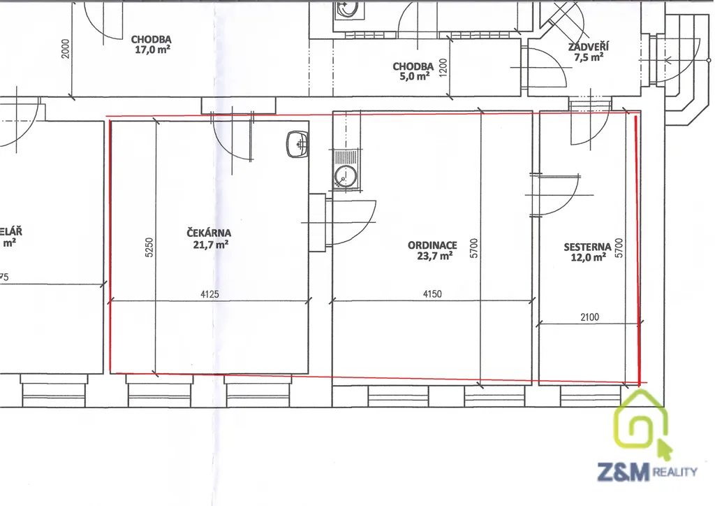
Nabízíme k dlouhodobému pronájmu ordinaci praktického lékaře se zázemím , místnosti 12,0 m2, 23,7m2, 21,7m2,dále kuchyňku + personální WC 9,9 m2 (společné pro tři jednotky) WC pacienti 4,1 m2 ve společných částech domu, v Lékařském domě v centru Sokolova. Jedná se o nové prostory v atraktivní lokalitě v centru města s bezproblémovým parkováním a dostupností MHD. Velmi Dobrá nabídka

Makléř

Máte zájem o tuto nemovistost?

Tímto, v souladu s nařízením Evropského parlamentu a Rady (EU) 2016/679, v platném znění, prohlašuji, že mi je alespoň 16 let a uděluji tak svůj souhlas se zpracováním zadaných údajů (jméno, telefon, e-mail, ip adresa) společnosti B3 Technology, s.r.o., IČ: 07330600, se sídlem Novostavby 126/23, 435 11 Lom (správce dat), za účelem předání dotazu z tohoto formuláře Vámi vybranému inzerentovi a zpětného kontaktování mé osoby. Osobní údaje bude správce zpracovávat manuálně i automaticky přímo prostřednictvím svých zaměstnanců. Informace předané tímto formulářem budou uloženy v databázi správce maximálně po dobu 10 let. Odvolání souhlasu s uložením a zpracováním poskytnutých dat lze e-mailem na info@origo-reality.cz. V případě podezření na neoprávněné použití Vámi poskytnutých údajů máte právo předat podnět k šetření Úřadu pro ochranu osobních údajů. Více informací
Chystáte se prodat nemovitost?
Pomůžeme Vám!

Přihlášení k odběru

Nenechte si ujít nejnovější nabídky pronájmu ordinací v Sokolově.