Prodej kanceláře, Kroměříž, Moravcova, 400 m2

Moravcova, Kroměříž

10 400 000 Kč
/za nemovitost
Cena včetně provize a nákladů na převod
Hypotéka od 46 482 Kč /měs. Chci hypotéku

Parametry nemovitosti

AdresaMoravcova, Kroměříž
ID706376
StavbaCihlová
Stav objektuDobrý
Typ objektuPatrový
Lokalita objektuCentrum obce
Užitná plocha400 m2
Zastavěná plocha200 m2
Plocha pozemku567 m2
Třída energetické náročnostiG - Mimořádně nehospodárná
Elektřina230V, 400V
PlynPlynovod
OdpadVeřejná kanalizace
TelekomunikaceTelefon, Internet
DopravaVlak, Dálnice, Silnice, MHD
VodaVodovod
Parkování

Origo partneři v Kroměříži

Popis

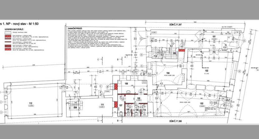
Hledáte možnost spojit bydlení v samotném centru Kroměříže s podnikáním? Nabízíme Vám jedinečnou příležitost – dvoupodlažní dům k rekonstrukci na ulici Moravcova, s projektovou dokumentací a mnoha variantami využití. V přízemí se nachází prostorná komerční část o užitné ploše přibližně 200 m² s vysokými stropy, přístupná hlavním vjezdem přes průjezd do dvora. Díky druhému vstupu z ulice je možné prostor rozdělit na dvě samostatné jednotky, ideální například pro obchod, kanceláře nebo služby.
V patře je připraven prostor pro prostorný byt 4+1 o velikosti cca 150 m² se zázemím a jihovýchodně orientovanou terasou. Alternativně lze prostor přebudovat na dvě samostatné bytové jednotky 2+kk. V zadní části objektu je navíc možnost vybudovat další obytné prostory, sklady či technické zázemí podle potřeb budoucího majitele.
Dům je částečně podsklepený, suchý, v roce 2020 došlo k výměně střešní krytiny za novou plechovou. Parkování je zajištěno na vlastním pozemku ve dvoře. Objekt je nemovitou kulturní památkou a díky své poloze v centru města má velký investiční potenciál. Financování je možné z vlastních i úvěrových zdrojů, s jejichž vyřízením rádi pomůžeme.

Makléř

Máte zájem o tuto nemovistost?

Tímto, v souladu s nařízením Evropského parlamentu a Rady (EU) 2016/679, v platném znění, prohlašuji, že mi je alespoň 16 let a uděluji tak svůj souhlas se zpracováním zadaných údajů (jméno, telefon, e-mail, ip adresa) společnosti B3 Technology, s.r.o., IČ: 07330600, se sídlem Novostavby 126/23, 435 11 Lom (správce dat), za účelem předání dotazu z tohoto formuláře Vámi vybranému inzerentovi a zpětného kontaktování mé osoby. Osobní údaje bude správce zpracovávat manuálně i automaticky přímo prostřednictvím svých zaměstnanců. Informace předané tímto formulářem budou uloženy v databázi správce maximálně po dobu 10 let. Odvolání souhlasu s uložením a zpracováním poskytnutých dat lze e-mailem na info@origo-reality.cz. V případě podezření na neoprávněné použití Vámi poskytnutých údajů máte právo předat podnět k šetření Úřadu pro ochranu osobních údajů. Více informací
Chystáte se prodat nemovitost?
Pomůžeme Vám!

Přihlášení k odběru

Nenechte si ujít nejnovější nabídky prodeje kanceláří v Kroměříži.