Pronájem obchodního prostoru, Liběchov, nám. V. Levého, 489 m2 (ID: 1433238)

nám. V. Levého, Liběchov

Cena na vyžádání
/za měsíc
Získejte výhodnou HYPOTÉKU Chci hypotéku

Parametry nemovitosti

Adresanám. V. Levého, Liběchov
ID47
StavbaCihlová
Stav objektuDobrý
Patro1. z 2
Typ objektuPatrový
Lokalita objektuCentrum obce
Užitná plocha489 m2
Výtah

Origo partneři v Liběchově

Popis

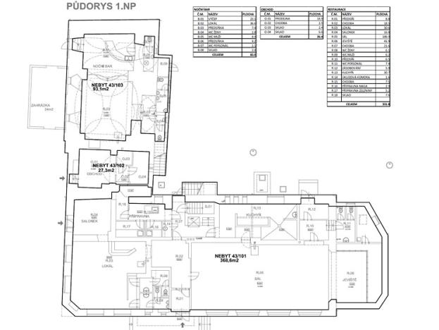
Jako přímí majitelé Vám nabízíme k pronájmu obchodní prostory v centru města Liběchov, nedaleko Liběchovského zámku.

Jedná se o prostory bývalé restaurace, sálu a baru s celkovou plochou 489 m². Jednotlivé části lze pronajmout i samostatně, např.
- bar 93m² (+ možný sklad 27 m²)
- restaurace 200,9 m²
- sál 167,7 m².

Prostory lze využít i jako skladovací prostor.

Cena pronájmu jednotlivých prostor je dle dohody. Doporučujeme Vám osobní prohlídku.

Makléř

Máte zájem o tuto nemovistost?

Tímto, v souladu s nařízením Evropského parlamentu a Rady (EU) 2016/679, v platném znění, prohlašuji, že mi je alespoň 16 let a uděluji tak svůj souhlas se zpracováním zadaných údajů (jméno, telefon, e-mail, ip adresa) společnosti B3 Technology, s.r.o., IČ: 07330600, se sídlem Novostavby 126/23, 435 11 Lom (správce dat), za účelem předání dotazu z tohoto formuláře Vámi vybranému inzerentovi a zpětného kontaktování mé osoby. Osobní údaje bude správce zpracovávat manuálně i automaticky přímo prostřednictvím svých zaměstnanců. Informace předané tímto formulářem budou uloženy v databázi správce maximálně po dobu 10 let. Odvolání souhlasu s uložením a zpracováním poskytnutých dat lze e-mailem na info@origo-reality.cz. V případě podezření na neoprávněné použití Vámi poskytnutých údajů máte právo předat podnět k šetření Úřadu pro ochranu osobních údajů. Více informací
Chystáte se prodat nemovitost?
Pomůžeme Vám!

Přihlášení k odběru

Nenechte si ujít nejnovější nabídky pronájmu obchodních prostor v Liběchově.