Prodej pozemku pro bydlení, Brandýs nad Labem-Stará Boleslav, Zdeňka Fibicha, 148 m2 (ID: 1421763)

Zdeňka Fibicha, Brandýs nad Labem-Stará Boleslav

7 499 000 Kč
/za nemovitost
Hypotéka od 33 516 Kč /měs. Chci hypotéku

Parametry pozemku

AdresaZdeňka Fibicha, Brandýs nad Labem-Stará Boleslav
IDER-73
StavbaCihlová
Stav objektuVe výstavbě
Typ objektuPatrový
Užitná plocha148 m2
Podlahová plocha148 m2
Plocha pozemku639 m2
Třída energetické náročnostiC - Úsporná

Origo partneři v Brandýse nad Labem

Popis

Nabízíme k prodeji staevbní pozemek s platným stavebním povolením. Současný majitel již vystavěl Základovou desku a tak je možné ihned pokračovat ve výstavbě. Do Vánoce může být stavba "pod střechou".
Další práce jsou již v režii budoucích majitelů. Nemovitost se nachází v klidné a vyhledávané lokalitě - ve Staré Boleslavi.

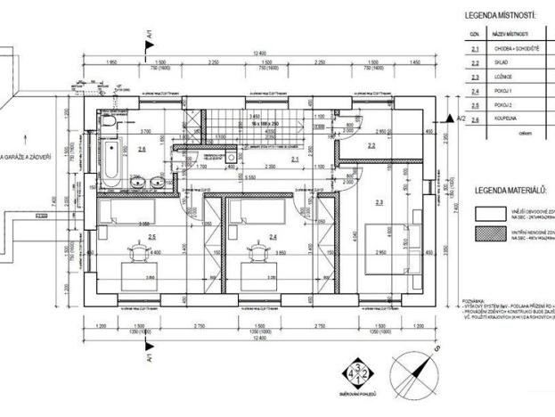
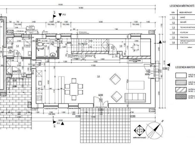
Dispozice a rozloha:
- 4+kk
- Užitná plocha 148 m
- Pozemek o výměře 639 m

Vybavení a infrastruktura:
- Přípojky na vodu, plyn, elektřinu a kanalizaci jsou již na pozemku.
- Stavba je naplánována jako moderní dvoupodlažní rodinný dům s garáží.
- Dokončená stavba nabídne komfortní bydlení s důrazem na nízkou energetickou náročnost.

Výhody lokality:
- Skvělá dopravní dostupnost rychlý přístup na dálnici, 25 minut do centra Prahy a 25 minut do Mladé Boleslavi.
- Veškerá občanská vybavenost v pěší vzdálenosti (200 m) potraviny, restaurace a další obchody.
- Klidná a zelená lokalita vhodná pro rodinné bydlení.

Koupi je možné financovat hypotečním úvěrem s jehož výběrem vám rádi poradíme.
Pro více informací a prohlídku nemovitosti nás neváhejte kontaktovat. Těšíme se na Vaši návštěvu!

Makléř

Máte zájem o tento pozemek?

Tímto, v souladu s nařízením Evropského parlamentu a Rady (EU) 2016/679, v platném znění, prohlašuji, že mi je alespoň 16 let a uděluji tak svůj souhlas se zpracováním zadaných údajů (jméno, telefon, e-mail, ip adresa) společnosti B3 Technology, s.r.o., IČ: 07330600, se sídlem Novostavby 126/23, 435 11 Lom (správce dat), za účelem předání dotazu z tohoto formuláře Vámi vybranému inzerentovi a zpětného kontaktování mé osoby. Osobní údaje bude správce zpracovávat manuálně i automaticky přímo prostřednictvím svých zaměstnanců. Informace předané tímto formulářem budou uloženy v databázi správce maximálně po dobu 10 let. Odvolání souhlasu s uložením a zpracováním poskytnutých dat lze e-mailem na info@origo-reality.cz. V případě podezření na neoprávněné použití Vámi poskytnutých údajů máte právo předat podnět k šetření Úřadu pro ochranu osobních údajů. Více informací
Chystáte se prodat nemovitost?
Pomůžeme Vám!

Přihlášení k odběru

Nenechte si ujít nejnovější nabídky prodeje pozemků pro bydlení v Brandýse nad Labem.