Prodej rodinného domu, Šošůvka, 201 m2 (ID: 1406229)
Šošůvka
/za nemovitost
včetně DPH, včetně poplatků, včetně provize, včetně právního servisu, cena k jednání
Parametry domu
| Adresa | Šošůvka | 
|---|---|
| ID | 00025 | 
| Stavba | Cihlová | 
| Stav objektu | Dobrý | 
| Vybaveno | Částečně | 
| Typ objektu | Patrový | 
| Druh objektu | Samostatný | 
| Lokalita objektu | Klidná část obce | 
| Užitná plocha | 201 m2 | 
| Plocha pozemku | 179 m2 | 
| Plocha zahrady | 87 m2 | 
| Třída energetické náročnosti | G - Mimořádně nehospodárná | 
| Ukazatel energetické náročnosti | 519 kWh/m2 za rok | 
Popis
Hledáte rodinný domek do 15 km od Blanska? Nebo stejně tak od Boskovic?
A jak by měl vypadat? 
Co třeba 4+1 s garáží a zahrádkou otočenou ke slunci v klidné obci?
 
Dnes vám nabízíme jedinečnou možnost pořídit si prostorný rodinný dům s užitnou plochou 201 m² v klidné lokalitě obce Šošůvka.
 
Tento prostorný dům s garáží se nachází na pozemku s výměrou 179 m² a k tomu má ještě 90 m2 zahrádky.
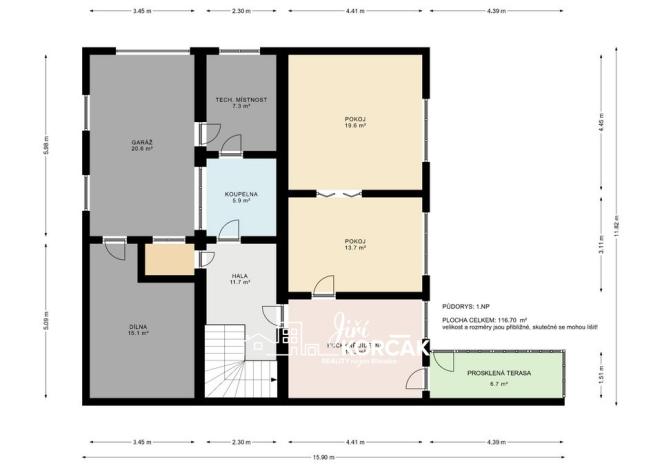
Budova je zděná, částečně podsklepená a nabízí obývací pokoj s ložnicí a kuchyní v přízemí a dva prostorné pokoje se dvěma půdami v podkroví.
Zázemí domu jako je koupelna, toaleta, technická místnost, garáž a sklad je dostupné z chodby za kuchyní a stejně tak je z tohoto místa dostupné po dřevěném schodišti i podkroví.
 
Dům je částečně zařízený, což vám usnadní příchod do nového domova. 
Toto je skvělá příležitost pro ty, kteří hledají prostorné a pohodlné bydlení s možností vlastní zahrádky. 
Nebojte se změnit svůj život a začít novou kapitolu v tomto útulném domě a nezapomeňte,
že na opravu domu, resp. na zateplení, nová okna, tepelné čerpadlo, výměnu kotle nebo na fotovoltaiku lze čerpat státní dotaci. 
Nabízíme Vám domov plný nových možností a příležitostí!
Obec Šošůvka je ideální lokalitou pro milovníky přírody a klidu. Nachází se nedaleko světoznámých jeskyní Moravského krasu a známého zatopeného lomu, který nabízí skvělé podmínky pro letní koupání i zimní otužování. 
Přijďte se podívat, je tu opravdu hezky.
V případě vážného zájmu více klientů, bude vybrán ten s nejvýhodnější nabídkou.
Máte nějaké dotazy? Chcete si domluvit prohlídku?
Potom mi zavolejte, nebo napište. Budu se na vás těšit na prohlídkách.
Přihlášení k odběru
Nenechte si ujít nejnovější nabídky prodeje rodinných domů v Šošůvce.
 
                                                                                     
                                                                                     
                                                                                     
                                                                                     
                                                                                     
                                                                                     
                                                                                     
                                                                                     
                                                                                     
                                                                                     
                                                                                     
                                                                                     
                                                                                     
                                                                                     
                                                                                     
                                                                                     
                                                                                     
                                                                                     
                                                                                     
                                                                                     
                                                                                     
                                                                                     
                         
         
         
         
         
         
         
         
        