Pronájem kanceláře, Praha - Krč, Olbrachtova, 311 m2 (ID: 1396157)

Olbrachtova, Praha 4

15,5 €
/za metr čtvereční / měsíc
+ služby 90,-Kč/m2/měs. + DPH
Získejte výhodnou HYPOTÉKU Chci hypotéku

Parametry nemovitosti

AdresaOlbrachtova, Praha 4
ID7328
StavbaSmíšená
Stav objektuVelmi dobrý
Patro8. z 10
Typ objektuPatrový
VlastnictvíOsobní
Užitná plocha311 m2
Plocha nebytových prostor311 m2
Třída energetické náročnostiC - Úsporná
Garáž
Výtah

Origo partneři v Praze 4

Stěhovací služby

Výkup a prodej starého nábytku

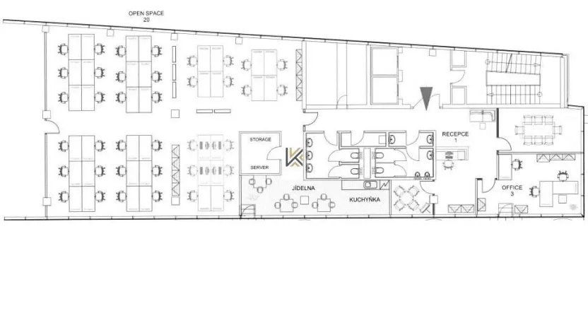
Popis

Neplatíte provizi ! Nabízíme k pronájmu kanceláře 311m2 v 7. patře budovy The Greenline v ul. Jihlavská, Praha 4.

The Greenline je nadstandardně řešená administrativní budova v byznysovém srdci Prahy 4. Snadný a rychlý přístup do centra města. Otevřené půdorysy budovy se přizpůsobí dispozičním požadavkům klienta. K dispozici je celkem 8 moderních výtahů. Sdílené zasedací místnosti, recepce s ostrahou 24/7. Pouze 2min. chůze od stanice metra (Kačerov)

Zdarma pro Vás připravíme nabídku kanceláří z více jak 300 budov po celé Praze.

Makléř

Máte zájem o tuto nemovistost?

Tímto, v souladu s nařízením Evropského parlamentu a Rady (EU) 2016/679, v platném znění, prohlašuji, že mi je alespoň 16 let a uděluji tak svůj souhlas se zpracováním zadaných údajů (jméno, telefon, e-mail, ip adresa) společnosti B3 Technology, s.r.o., IČ: 07330600, se sídlem Novostavby 126/23, 435 11 Lom (správce dat), za účelem předání dotazu z tohoto formuláře Vámi vybranému inzerentovi a zpětného kontaktování mé osoby. Osobní údaje bude správce zpracovávat manuálně i automaticky přímo prostřednictvím svých zaměstnanců. Informace předané tímto formulářem budou uloženy v databázi správce maximálně po dobu 10 let. Odvolání souhlasu s uložením a zpracováním poskytnutých dat lze e-mailem na info@origo-reality.cz. V případě podezření na neoprávněné použití Vámi poskytnutých údajů máte právo předat podnět k šetření Úřadu pro ochranu osobních údajů. Více informací
Chystáte se prodat nemovitost?
Pomůžeme Vám!

Přihlášení k odběru

Nenechte si ujít nejnovější nabídky pronájmu kanceláří v Praze 4.