Prodej rodinného domu, Němčice, 122 m2 (ID: 1388231)

Němčice

11 620 000 Kč
/za nemovitost
Hypotéka od 51 934 Kč /měs. Chci hypotéku

Parametry domu

AdresaNěmčice
ID880630
StavbaCihlová
Stav objektuNovostavba
VybavenoNe
Druh objektuSamostatný
Lokalita objektuKlidná část obce
VlastnictvíOsobní
Užitná plocha122 m2
Plocha pozemku710 m2

Origo partneři v Němčicích

Popis

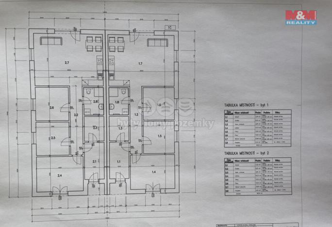
Prodej nízkopodlažního rodinného domu o dvou bytových jednotkách. Předmětem prodeje je jedna bytová jednotka (pravá část domu se samostatným vchodem) o dispozici 4+kk, se nachází v obci Němčice u Pardubic.
Celková výměra pozemku 710 m², dům o podlahové ploše 96 m² + terasa 26 m². Součástí domu bude kuchyňská linka. Dispozice: zádveří 7,20 m², chodba 8,25 m², technická místnost 4,80 m², obývací pokoj s kuchyňským koutem 33,65 m², ložnice 15,75 m², pokoj 10,50 m², pokoj 10,50 m², koupelna 5,35 m². Vytápění je tepelným čerpadlem LG. Dům má dvě bytové jednotky s jedním číslem popisným. Dům je obložený masivním dřevem. Kolaudace rodinného domu v září 2025 V okolí domu budou zhotoveny terénní úpravy, okapové chodníky, přístupový chodník ze zámkové dlažby. Obvodové zdivo z tvárnic Ytong, okna plastová šedá (trojskla), krytina tašky. Jedná se o velmi úsporný dům. V obci se nachází obchod, dětské hřiště, restaurace. Do obce zajíždí MHD. Lukrativní místo. Zvu Vás na prohlídku.

Makléř

Máte zájem o tento dům?

Tímto, v souladu s nařízením Evropského parlamentu a Rady (EU) 2016/679, v platném znění, prohlašuji, že mi je alespoň 16 let a uděluji tak svůj souhlas se zpracováním zadaných údajů (jméno, telefon, e-mail, ip adresa) společnosti B3 Technology, s.r.o., IČ: 07330600, se sídlem Novostavby 126/23, 435 11 Lom (správce dat), za účelem předání dotazu z tohoto formuláře Vámi vybranému inzerentovi a zpětného kontaktování mé osoby. Osobní údaje bude správce zpracovávat manuálně i automaticky přímo prostřednictvím svých zaměstnanců. Informace předané tímto formulářem budou uloženy v databázi správce maximálně po dobu 10 let. Odvolání souhlasu s uložením a zpracováním poskytnutých dat lze e-mailem na info@origo-reality.cz. V případě podezření na neoprávněné použití Vámi poskytnutých údajů máte právo předat podnět k šetření Úřadu pro ochranu osobních údajů. Více informací
Chystáte se prodat nemovitost?
Pomůžeme Vám!

Přihlášení k odběru

Nenechte si ujít nejnovější nabídky prodeje rodinných domů v Němčicích (okr. Pardubice).