Prodej zemědělské usedlosti, Lovečkovice - Knínice, 436 m2

Knínice

8 499 000 Kč
/za nemovitost
Hypotéka od 37 985 Kč /měs. Chci hypotéku

Parametry domu

AdresaKnínice
ID22336
StavbaSmíšená
Stav objektuVelmi dobrý
VybavenoAno
Typ objektuPatrový
Druh objektuSamostatný
Lokalita objektuKlidná část obce
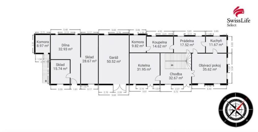
Užitná plocha620 m2
Zastavěná plocha436 m2
Podlahová plocha436 m2
Plocha pozemku6217 m2
Třída energetické náročnostiG - Mimořádně nehospodárná
Elektřina230V, 400V
OdpadJímka
KomunikaceAsfaltová
DopravaSilnice
Garáž
Sklep
Bezbarierový přístup
Parkování

Origo partneři v Lovečkovicích

Okna a dveře

Rekonstrukce

Zámečnické práce

Popis

Unikátní Zemědělská Usedlost Knínice-Lovečkovice!

Nehledejte dál! Máme pro Vás skvostnou nabídku - zemědělskou usedlost v malebné obci Knínice-Lovečkovice, kde historie a moderní komfort splývají v jedinečném spojení.

Tato usedlost prošla nákladnou rekonstrukcí před zhruba 18 lety a od té doby září ve své plné kráse. S funkcionalitou v každém koutu nabízí mnoho možností využití a otevírá dveře k nekonečným příležitostem.

S rozlohou 620 m2 užitné plochy a dalšími 280 m2, které nabízí stodola, se Vám zde otevírají dveře do světa možností. Zastavte se a přemýšlejte o vybudování několika bytů, vytvoření domu pro velké rodiny nebo zahájení investičního projektu na pořádání svateb - Vaše představy jsou jediným limitem.

Dům má obrovské množství pokojů a dalších prostor, včetně tanečního sálu, původních chlévů a garáže, které čekají, až se jimi budete moci inspirovat a proměnit je ve Vaše vlastní kouzelné útočiště.

Celková plocha pozemků, které jsou součástí této jedinečné nabídky, činí impozantních 6217 m2, poskytující dostatek prostoru pro Vaše nápady a plány.

Nechte se unést tímto zvláštním kouskem historie, který nabízí nekonečné možnosti, a dejte tomuto úžasnému místu nový život!

Pro více informací a domluvení prohlídky neváhejte a kontaktujte mě ihned, realitní makléř Milan Kaňkovský. Jsem připraven Vám pomoci uskutečnit Vaše sny!


V případě více zájemců o nemovitost, si majitel vyhrazuje právo prodat nemovitost zájemci s nejvyšší nabídkou.

Makléř

Máte zájem o tento dům?

Tímto, v souladu s nařízením Evropského parlamentu a Rady (EU) 2016/679, v platném znění, prohlašuji, že mi je alespoň 16 let a uděluji tak svůj souhlas se zpracováním zadaných údajů (jméno, telefon, e-mail, ip adresa) společnosti B3 Technology, s.r.o., IČ: 07330600, se sídlem Novostavby 126/23, 435 11 Lom (správce dat), za účelem předání dotazu z tohoto formuláře Vámi vybranému inzerentovi a zpětného kontaktování mé osoby. Osobní údaje bude správce zpracovávat manuálně i automaticky přímo prostřednictvím svých zaměstnanců. Informace předané tímto formulářem budou uloženy v databázi správce maximálně po dobu 10 let. Odvolání souhlasu s uložením a zpracováním poskytnutých dat lze e-mailem na info@origo-reality.cz. V případě podezření na neoprávněné použití Vámi poskytnutých údajů máte právo předat podnět k šetření Úřadu pro ochranu osobních údajů. Více informací
Chystáte se prodat nemovitost?
Pomůžeme Vám!

Přihlášení k odběru

Nenechte si ujít nejnovější nabídky prodeje zemědělských usedlostí v Lovečkovicích.