Prodej rodinného domu, Velký Borek, Partyzánská, 863 m2

Partyzánská, Velký Borek

9 000 000 Kč
/za nemovitost
včetně poplatků a právního servisu
Hypotéka od 40 225 Kč /měs. Chci hypotéku

Parametry domu

AdresaPartyzánská, Velký Borek
ID559
StavbaCihlová
Stav objektuVe výstavbě
Typ objektuPatrový
Druh objektuSamostatný
Lokalita objektuKlidná část obce
Užitná plocha214 m2
Zastavěná plocha119 m2
Podlahová plocha863 m2
Plocha pozemku863 m2
Třída energetické náročnostiG - Mimořádně nehospodárná

Origo partneři v Velkém Borku

Popis

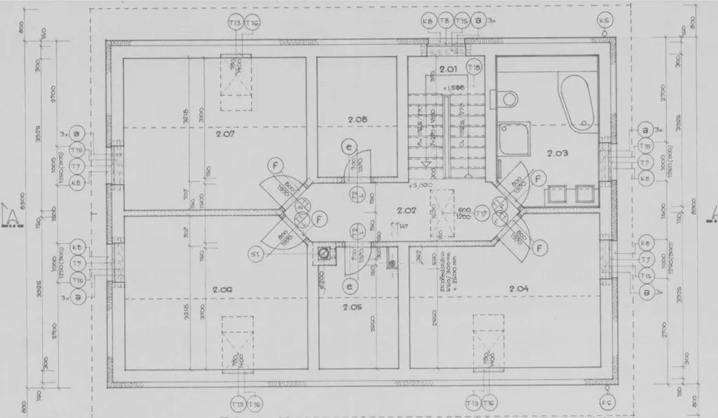
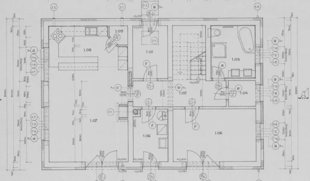
Nabízíme k prodeji hrubou stavbu v ulici Partyzánská ve Velkém Borku. Dům se nachází na vlastním pozemku o celkové výměře 863 m2. Samotná zastavěná plocha domu je 119 m2. Dům stojí na konci slepé ulice v klidné části obce. Je napojen na vodovodní řad a kanalizaci. Dispozice přízemí je tvořena vstupní chodbou, budoucí technickou místností, obývacím pokojem. který je spojený s budoucím kuchyňským prostorem s komorou. Dále je zde obytná místnost a koupelna kde se počítá s rohovou vanou, sprchovým koutem, toaletou a dvěma umyvadly. V patře se počítá s dalšími třemi místnostmi, dvěma šatnami a koupelnou stejně zařízenou jako v přízemí. V celém domě jsou kompletně rozvedeny elektrické kabely, odpady, voda, zabezpečovací systém. Pro vytápění se počítá s tepelným čerpadlem a podlahovým vytápěním. V obývacím pokoji je příprava na krbová kamna. V plánech se také počítalo s vrtanou studnou na pozemku. Pro více informací a fotodokumentaci interiéru domu si napište nebo zavolejte. Rádi vám případně navrhneme financování koupě této nemovitosti.

Makléř

Máte zájem o tento dům?

Tímto, v souladu s nařízením Evropského parlamentu a Rady (EU) 2016/679, v platném znění, prohlašuji, že mi je alespoň 16 let a uděluji tak svůj souhlas se zpracováním zadaných údajů (jméno, telefon, e-mail, ip adresa) společnosti B3 Technology, s.r.o., IČ: 07330600, se sídlem Novostavby 126/23, 435 11 Lom (správce dat), za účelem předání dotazu z tohoto formuláře Vámi vybranému inzerentovi a zpětného kontaktování mé osoby. Osobní údaje bude správce zpracovávat manuálně i automaticky přímo prostřednictvím svých zaměstnanců. Informace předané tímto formulářem budou uloženy v databázi správce maximálně po dobu 10 let. Odvolání souhlasu s uložením a zpracováním poskytnutých dat lze e-mailem na info@origo-reality.cz. V případě podezření na neoprávněné použití Vámi poskytnutých údajů máte právo předat podnět k šetření Úřadu pro ochranu osobních údajů. Více informací
Chystáte se prodat nemovitost?
Pomůžeme Vám!

Přihlášení k odběru

Nenechte si ujít nejnovější nabídky prodeje rodinných domů v Velkém Borku.