Prodej výrobních prostor, Sušice - Sušice III, 327 m2

Sušice III

Cena na vyžádání
/za nemovitost
Rádí Vám poskytneme na vyžádání
Získejte výhodnou HYPOTÉKU Chci hypotéku

Parametry nemovitosti

AdresaSušice III
IDN059
StavbaCihlová
Stav objektuVelmi dobrý
Patro1.
VybavenoČástečně
Typ objektuPřízemní
Lokalita objektuOkraj obce
Užitná plocha327 m2
Zastavěná plocha367 m2
Podlahová plocha327 m2
Třída energetické náročnostiG - Mimořádně nehospodárná
Elektřina230V, 400V
OdpadVeřejná kanalizace
TopeníJiné
KomunikaceAsfaltová, Zpevněná
TelekomunikaceKabelové rozvody
DopravaVlak, Silnice, Autobus
VodaStudna
Garáž
Výtah
Bezbarierový přístup
Parkování

Origo partneři v Sušici

Podlahy

Stěhovací služby

Popis

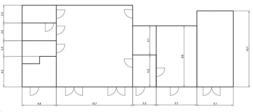
Nabízíme prodej - auto/dílny, garáže, skladů nebo výrobní haly v Sušici v okrajové části města bývalého vojenského areálu. Jedná se o přízemní objekt z cihelného zdiva rozčleněný na dvě garáže s montážní jámou, (52.3m2, 53.5m2), dílnu (126.7m2), 4x sklad /(11.5m2, 21m2, 12.1m2, 9.8m2), kancelář (15.3m2) a soc. zařízení (24.1m2) s celkovou podlahovou plochou 326.8m2. Objekt se prodává včetně vybavení, dvěma dvousloupovými aoutozvedáky, rozvodu vzduchu včetně kompresoru, regály atd. Budova je vystavěna na konci řadové zástavby, krytinou tradiční AZC z vlnité šablony, okny dřevěnými s kovovými a prosklenými dveřmi, podlahy betonové. V jedné dílně je zhotoven protipožární strop a zhruba nad ¾ budovy se nachází pochozí půdní prostor. V budově je zavedena el., 230/400V. Vytápění dílny zajišťují lokální kamna na olej. Příjezd k pozemku je po zpevněné komunikaci v majetku města. Ve městě najdete poměrně kvalitní občanskou vybavenost. Z dopravy je velmi dobrá dostupnost do Plzně 70 km, Klatov 30 km, Strakonic 38 km a Německa 40 km. Budovu lze koupit i bez jedné garáže za sníženou cenu. Rádi Vám poskytneme více informací.

Makléř

Máte zájem o tuto nemovistost?

Tímto, v souladu s nařízením Evropského parlamentu a Rady (EU) 2016/679, v platném znění, prohlašuji, že mi je alespoň 16 let a uděluji tak svůj souhlas se zpracováním zadaných údajů (jméno, telefon, e-mail, ip adresa) společnosti B3 Technology, s.r.o., IČ: 07330600, se sídlem Novostavby 126/23, 435 11 Lom (správce dat), za účelem předání dotazu z tohoto formuláře Vámi vybranému inzerentovi a zpětného kontaktování mé osoby. Osobní údaje bude správce zpracovávat manuálně i automaticky přímo prostřednictvím svých zaměstnanců. Informace předané tímto formulářem budou uloženy v databázi správce maximálně po dobu 10 let. Odvolání souhlasu s uložením a zpracováním poskytnutých dat lze e-mailem na info@origo-reality.cz. V případě podezření na neoprávněné použití Vámi poskytnutých údajů máte právo předat podnět k šetření Úřadu pro ochranu osobních údajů. Více informací
Chystáte se prodat nemovitost?
Pomůžeme Vám!

Přihlášení k odběru

Nenechte si ujít nejnovější nabídky prodeje výrobních prostor v Sušici (okr. Klatovy).