Pronájem obchodního prostoru, Klatovy, Jateční, 125 m2 (ID: 1162623)

Jateční, Klatovy II

110 Kč
/za metr čtvereční / měsíc
+ provize makléři
Získejte výhodnou HYPOTÉKU Chci hypotéku

Parametry nemovitosti

Náklady na bydleníZáloha na topení, el. energii a vodu 110 Kč/m2+ DPH
AdresaJateční, Klatovy II
StavbaPanelová
Stav objektuDobrý
Patro1.
Typ objektuPatrový
Lokalita objektuOkraj obce
Užitná plocha125 m2
Podlahová plocha125 m2
Třída energetické náročnostiF - Velmi nehospodárná
Ukazatel energetické náročnosti211 kWh/m2 za rok
Výtah
Bezbarierový přístup
Parkování

Origo partneři v Klatovech

Stěhovací služby

Pojištění a finance

Popis

Hledáte komerční, obchodní, výrobní či skladové prostory. Tím pádem areál spol. Jitona splňuje všechny předpoklady včetně výborné dopravní dostupnost a bezplatné parkování před budovou.
Při dlouhodobé spolupráci možnost úprav prostoru, podle Vašich představ.
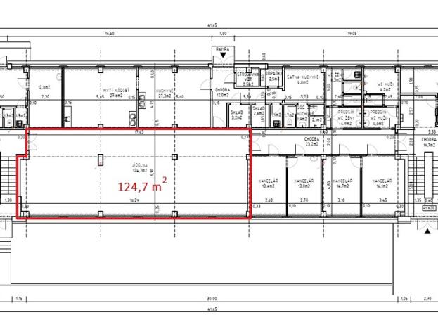
Velikost prostoru nabízeného k pronájmu je 125, m2, o rozměrech 18.2 m x 6,9 m.
Je možné využít samostatný vchod nebo přístupem přes rampu.
Záloha na energie je 110,-Kč/m2 ( paušál na el. 30Kč/m2 + 80Kč/m2 topení, vodu a užívání spol. prostorů + DPH)
Na patře se nachází recepce i veškeré sociální vybavenost včetně kuchyňky.
Pro další upřesnění technických parametrů mě neváhejte kontaktovat

Makléř

Máte zájem o tuto nemovistost?

Tímto, v souladu s nařízením Evropského parlamentu a Rady (EU) 2016/679, v platném znění, prohlašuji, že mi je alespoň 16 let a uděluji tak svůj souhlas se zpracováním zadaných údajů (jméno, telefon, e-mail, ip adresa) společnosti B3 Technology, s.r.o., IČ: 07330600, se sídlem Novostavby 126/23, 435 11 Lom (správce dat), za účelem předání dotazu z tohoto formuláře Vámi vybranému inzerentovi a zpětného kontaktování mé osoby. Osobní údaje bude správce zpracovávat manuálně i automaticky přímo prostřednictvím svých zaměstnanců. Informace předané tímto formulářem budou uloženy v databázi správce maximálně po dobu 10 let. Odvolání souhlasu s uložením a zpracováním poskytnutých dat lze e-mailem na info@origo-reality.cz. V případě podezření na neoprávněné použití Vámi poskytnutých údajů máte právo předat podnět k šetření Úřadu pro ochranu osobních údajů. Více informací
Chystáte se prodat nemovitost?
Pomůžeme Vám!
Theleadway banner

Přihlášení k odběru

Nenechte si ujít nejnovější nabídky pronájmu obchodních prostor v Klatovech.