Prodej obchodního prostoru, Vlčnov, 670 m2 (ID: 1057378)

Vlčnov

13 500 000 Kč
/za nemovitost
včetně poplatků, včetně provize, včetně právního servisu, cena k jednání
Hypotéka od 60 337 Kč /měs. Chci hypotéku

Parametry nemovitosti

AdresaVlčnov
ID02496
StavbaCihlová
Stav objektuVelmi dobrý
VybavenoČástečně
Typ objektuPatrový
Druh objektuSamostatný
Lokalita objektuCentrum obce
Užitná plocha670 m2
Plocha pozemku538 m2
Třída energetické náročnostiG - Mimořádně nehospodárná
Elektřina230V, 400V
PlynPlynovod
OdpadVeřejná kanalizace
TopeníÚstřední plynové
KomunikaceBetonová, Asfaltová
TelekomunikaceInternet, Satelit
DopravaSilnice, Autobus
VodaVodovod
Garáž
Parkování

Origo partneři v Vlčnově

Popis

Tato třípodlažní budova vám nabízí možnost k bydlení, podnikání či investiční příležitosti. Původním záměrem bylo tuto budovu využívat jako hotel. V prvním patře a podkroví mělo být umístěno několik pokojů pro hotelové hosty. Tohle rozhodnutí je ale jen na vás. Celková plocha pozemku je 538 m2.

Před budovou může být několik parkovacích míst, dále je možno parkovat přímo v suterénu domu, kdy vjezd pod budovu máte z levé strany. V prvním patře máte tři samostatné bytové jednotky. K aktuálně dokončeným dvěma bytům máte samostatný vstup. Zde je ještě prostor právě pro další bytovou jednotku o dispozici 1+kk.

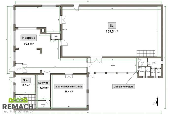
V případě podnikání oceníte velké výlohy v přízemí a možnost záboru před budovou, třeba posezení pro hosty. V přízemí máte hospodu s kapacitou pro 50 hostů, vybavenou kuchyni se spotřebiči a technologiemi, dále společenskou místnost o rozloze 40 m2 s výhledem do zahrady, oddělené toalety a sál o rozloze 160 m2. V roce 1993 byl sál kompletně zrekonstruován.

Byt 3+1 lze rozšířit o další místnost a mít tak byt 4+1. Byt 2+1 s balkonem je orientovaný na východní stranu. Zahrada za domem je přístupná jak od bytových jednotek, tak ze suterénu, její celková plocha je 94 m2. Rozsáhlé sklepní prostory nabízejí možnost nejen parkování, ale i skladování.

Tuto nemalou vesnici proslavila tradiční Jízda králů, vlčnovské búdy, tradice, tady bude vždy živo.

Makléř

Máte zájem o tuto nemovistost?

Tímto, v souladu s nařízením Evropského parlamentu a Rady (EU) 2016/679, v platném znění, prohlašuji, že mi je alespoň 16 let a uděluji tak svůj souhlas se zpracováním zadaných údajů (jméno, telefon, e-mail, ip adresa) společnosti B3 Technology, s.r.o., IČ: 07330600, se sídlem Novostavby 126/23, 435 11 Lom (správce dat), za účelem předání dotazu z tohoto formuláře Vámi vybranému inzerentovi a zpětného kontaktování mé osoby. Osobní údaje bude správce zpracovávat manuálně i automaticky přímo prostřednictvím svých zaměstnanců. Informace předané tímto formulářem budou uloženy v databázi správce maximálně po dobu 10 let. Odvolání souhlasu s uložením a zpracováním poskytnutých dat lze e-mailem na info@origo-reality.cz. V případě podezření na neoprávněné použití Vámi poskytnutých údajů máte právo předat podnět k šetření Úřadu pro ochranu osobních údajů. Více informací
Chystáte se prodat nemovitost?
Pomůžeme Vám!

Přihlášení k odběru

Nenechte si ujít nejnovější nabídky prodeje obchodních prostor v Vlčnově.