Prodej rodinného domu, Lety, 465 m2

Lety u Dobřichovic

14 980 000 Kč
/za nemovitost
Hypotéka od 66 952 Kč /měs. Chci hypotéku

Parametry domu

AdresaLety u Dobřichovic
IDHZ146495
StavbaCihlová
Stav objektuVelmi dobrý
Typ objektuPatrový
Druh objektuSamostatný
Lokalita objektuCentrum obce
Užitná plocha465 m2
Zastavěná plocha155 m2
Podlahová plocha465 m2
Plocha pozemku612 m2
Třída energetické náročnostiG - Mimořádně nehospodárná
Elektřina230V, 400V
PlynPlynovod
OdpadVeřejná kanalizace
TopeníÚstřední plynové
VodaVodovod

Origo partneři v Letech

Popis

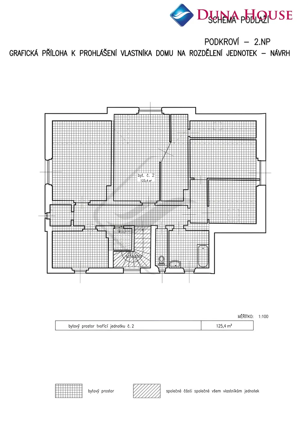
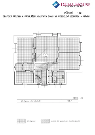
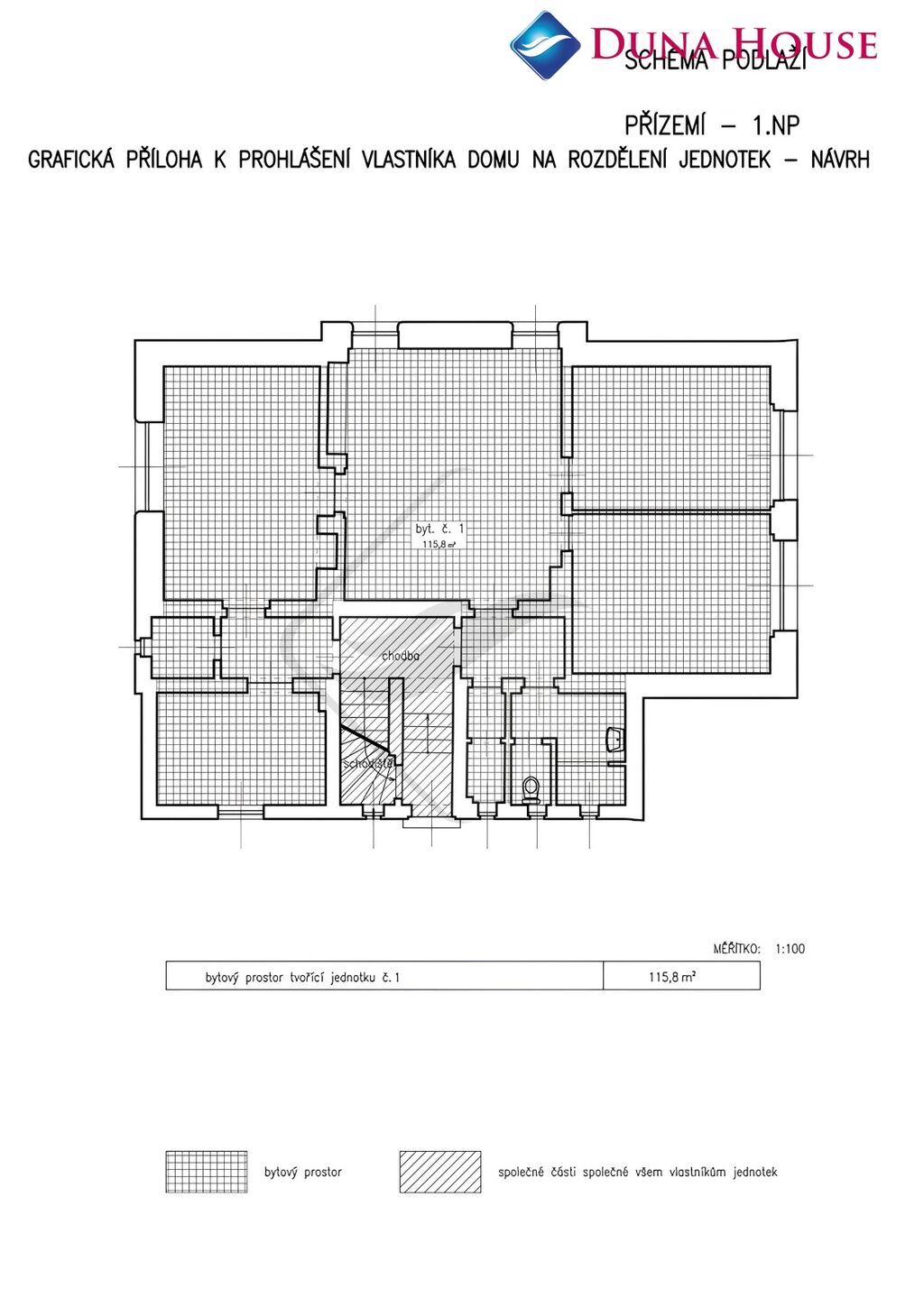
Nabízíme Vám k prodeji prvorepublikový rodinný dům 8+2 v obci Lety u Dobřichovic.

Samostatně stojící 3-podlažní rodinný dům.
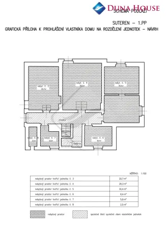
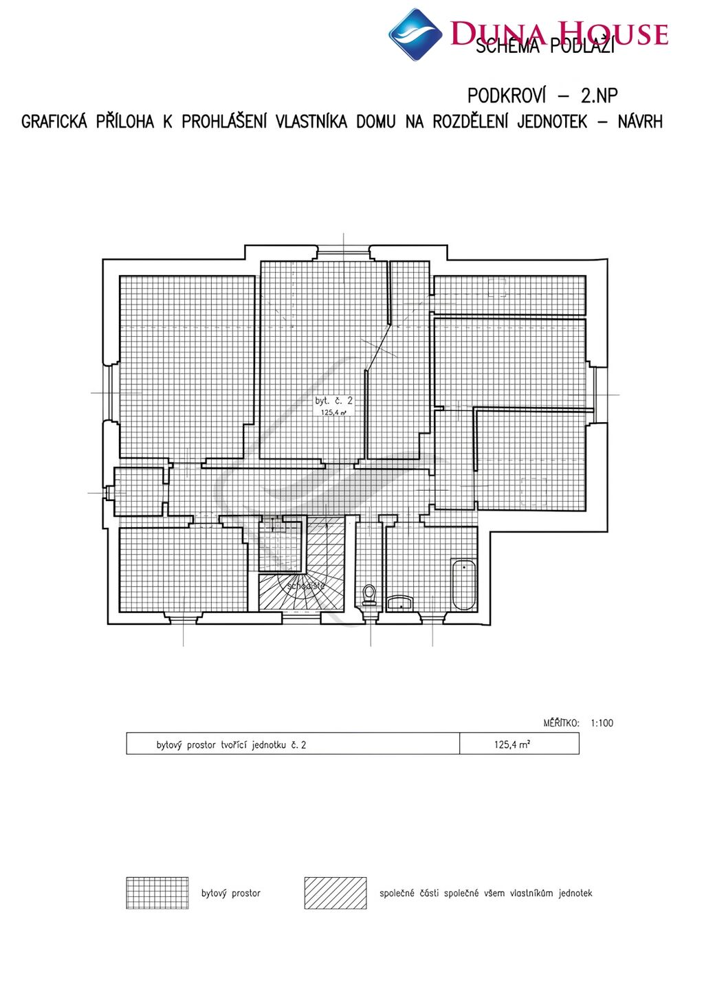
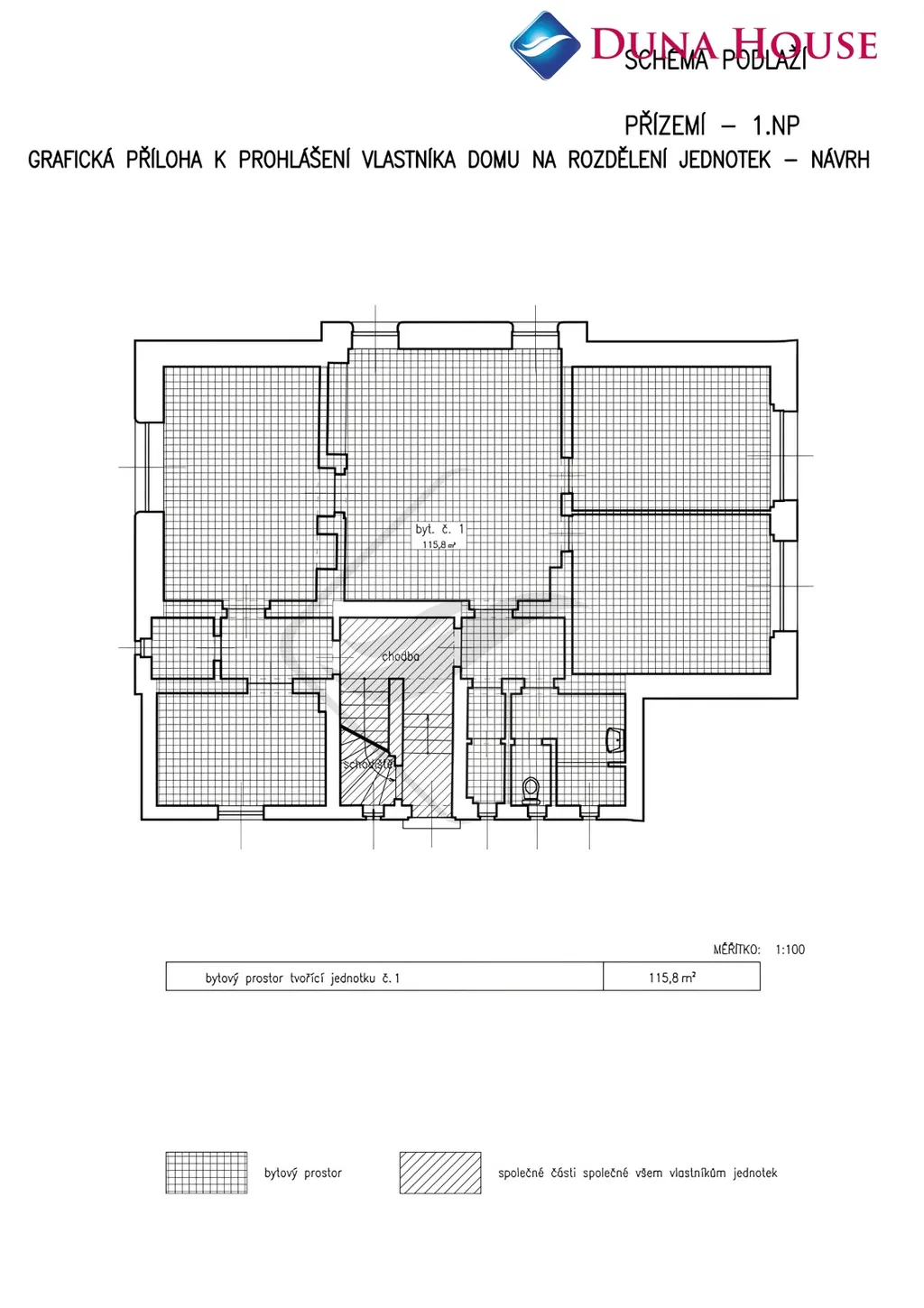
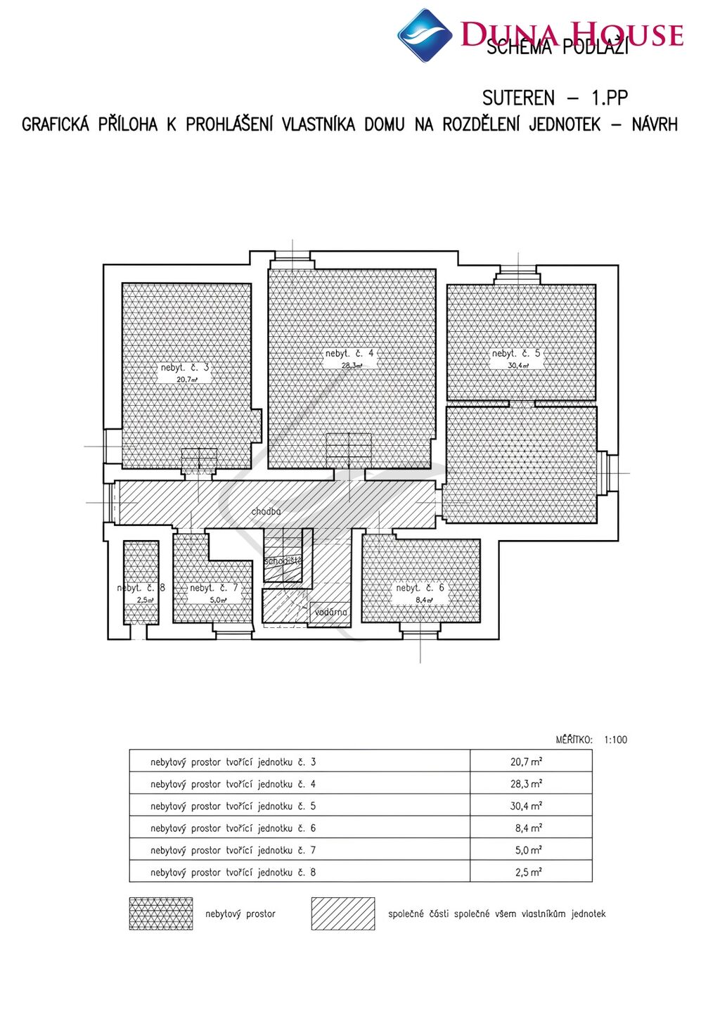
Obsahuje dva samostatné byty 4+1 o rozloze každý 130 m² + suterén.

Dům je po celkové rekonstrukci: nova fasáda, nova střecha, plastové okna.

Součástí prodeje je také pozemek o rozloze 612 m², který má dva vjezdy pro auta a vlastní studnu s pitnou vodou.
Dva samostatné vjezdy po obou stranách domu přímo z příjezdové komunikace.

Dům je napojen na veškeré inženýrské sítě.

Lokalita zajišťuje veškerou občanskou vybavenost na dosah ruky.

15 minut autem do Prahy 5 Radotín
10 minut pěšky do nádraží Řevnice

Vhodná investiční příležitost.

Doporučujeme.

Makléř

Máte zájem o tento dům?

Tímto, v souladu s nařízením Evropského parlamentu a Rady (EU) 2016/679, v platném znění, prohlašuji, že mi je alespoň 16 let a uděluji tak svůj souhlas se zpracováním zadaných údajů (jméno, telefon, e-mail, ip adresa) společnosti B3 Technology, s.r.o., IČ: 07330600, se sídlem Novostavby 126/23, 435 11 Lom (správce dat), za účelem předání dotazu z tohoto formuláře Vámi vybranému inzerentovi a zpětného kontaktování mé osoby. Osobní údaje bude správce zpracovávat manuálně i automaticky přímo prostřednictvím svých zaměstnanců. Informace předané tímto formulářem budou uloženy v databázi správce maximálně po dobu 10 let. Odvolání souhlasu s uložením a zpracováním poskytnutých dat lze e-mailem na info@origo-reality.cz. V případě podezření na neoprávněné použití Vámi poskytnutých údajů máte právo předat podnět k šetření Úřadu pro ochranu osobních údajů. Více informací
Chystáte se prodat nemovitost?
Pomůžeme Vám!

Přihlášení k odběru

Nenechte si ujít nejnovější nabídky prodeje rodinných domů v Letech (okr. Praha-západ).